QQ登录

只需一步,快速开始

登录 | 注册 | 找回密码

三维网

 找回密码
 注册

QQ登录

只需一步,快速开始

展开

通知     

goto3d 说: 在线网校重磅上线MC2022&Inventor2022全新课程,虞为民老师、大表哥同事精彩讲解,快去围观!
2021-06-25
查看: 1902|回复: 6
收起左侧

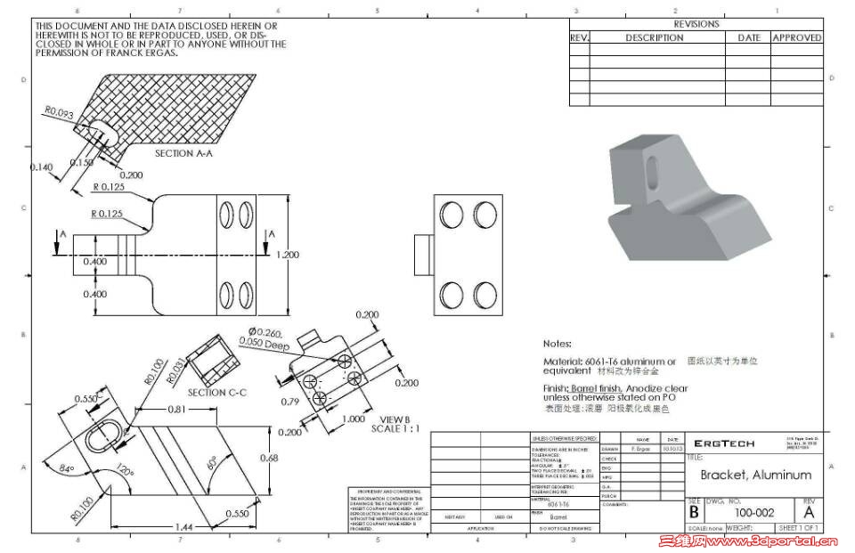
[求助] 这个图怎么画,有点难度

[复制链接]
发表于 2013-11-14 09:59:32 | 显示全部楼层 |阅读模式 来自: 中国江苏苏州

马上注册,结识高手,享用更多资源,轻松玩转三维网社区。

您需要 登录 才可以下载或查看,没有帐号?注册

x
嘉兴范总.jpg % ~1 w' _& M9 ?
发表于 2013-11-14 10:59:24 | 显示全部楼层 来自: 中国湖北武汉
左下图84度到底面差尺寸
 楼主| 发表于 2013-11-14 19:30:29 | 显示全部楼层 来自: 中国江苏苏州
是的,差一个尺寸,而且右边的3Dl图和左边的工程图根本不一样,
发表于 2013-11-14 21:24:34 | 显示全部楼层 来自: 中国湖北黄冈
本帖最后由 tangcarlos3d 于 2013-11-14 21:29 编辑
2 ?) I: w( ?# o" O4 j& _3 g! C& z
xiejing_2006 发表于 2013-11-14 19:30 static/image/common/back.gif4 A( y' H; b& _+ Y
是的,差一个尺寸,而且右边的3Dl图和左边的工程图根本不一样,

6 N' f: _; M5 F. `, [3D图换个方向就可以了。+ i2 U6 x1 k% C6 A5 `
这个图应该不难。要注意的是4个R0.125要用混合,不能用倒圆角,否则在水平面上标不出R尺寸。
' \1 x& X2 I0 D) s" [. x确实差一个尺寸。0 F- ~# R+ D9 ?

1 r2 A- ~' {$ y+ M没事画了一个。
QQ.jpg

评分

参与人数 1三维币 +3 收起 理由
唐依依 + 3 技术讨论

查看全部评分

 楼主| 发表于 2013-11-16 14:10:40 | 显示全部楼层 来自: 中国江苏苏州
tangcarlos3d 发表于 2013-11-14 21:24 static/image/common/back.gif
* f5 E; }2 F+ q5 ?/ Q7 g' Q8 Q3D图换个方向就可以了。
# \. ]' C" q( `# i- M这个图应该不难。要注意的是4个R0.125要用混合,不能用倒圆角,否则在水平面上标 ...

" n) m2 w; S& s正确!!!,
发表于 2013-11-17 22:51:17 | 显示全部楼层 来自: 中国江苏苏州
图上尺寸,是不是英制单位?
 楼主| 发表于 2013-11-18 18:35:08 | 显示全部楼层 来自: 中国江苏苏州
ok22ko 发表于 2013-11-17 22:51 static/image/common/back.gif
: m8 J+ J6 ~9 V3 C' T6 j图上尺寸,是不是英制单位?

8 y+ p, O! J& i* R是的:):):):):):)
发表回复
您需要登录后才可以回帖 登录 | 注册

本版积分规则


Licensed Copyright © 2016-2020 http://www.3dportal.cn/ All Rights Reserved 京 ICP备13008828号

小黑屋|手机版|Archiver|三维网 ( 京ICP备2023026364号-1 )

快速回复 返回顶部 返回列表