QQ登录

只需一步,快速开始

登录 | 注册 | 找回密码

三维网

 找回密码
 注册

QQ登录

只需一步,快速开始

展开

通知     

查看: 1196|回复: 8
收起左侧

[已解决] solidworks放样求助

[复制链接]
发表于 2013-11-4 13:45:56 | 显示全部楼层 |阅读模式 来自: 中国辽宁沈阳

马上注册,结识高手,享用更多资源,轻松玩转三维网社区。

您需要 登录 才可以下载或查看,没有帐号?注册

x
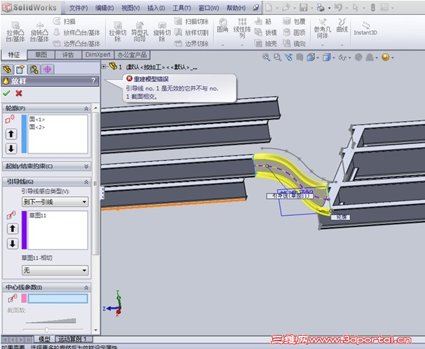
这个放样添加不了,而且显示的也不是我想要的形状,中间部分太窄了     有没有什么办法解决呀    6 k6 t6 u, a  v5 n
}X@1_TZ7BT}3FN%W%(OGXP9.jpg
发表于 2013-11-4 13:54:55 | 显示全部楼层 来自: 中国山东德州
比图形有问题,轮廓或多一些,中间就不那么窄了
发表于 2013-11-4 14:15:13 | 显示全部楼层 来自: 中国江苏无锡
本帖最后由 KCKK 于 2013-11-4 15:51 编辑 ( |+ Z2 j' A, ?$ {0 t
+ c, D  d) p5 N: L/ b9 n) `" T
用结构构件特征试一下。; g* p+ I1 {9 h, o* G
傲游截图20131104155057.png
  B& H7 G8 K* F. Y/ R* \; N. C, h/ C- a9 Y$ \7 K7 H2 w  d9 a

评分

参与人数 1三维币 +3 收起 理由
阿帕奇 + 3

查看全部评分

发表于 2013-11-4 14:16:56 | 显示全部楼层 来自: 中国江苏苏州
多能几条引线
发表于 2013-11-4 14:47:50 | 显示全部楼层 来自: 中国广东云浮
看图形好像截面尺寸一样的,扫描就可以了。想放样好点,最好加多点引导线或放样截面。

评分

参与人数 1三维币 +3 收起 理由
阿帕奇 + 3

查看全部评分

发表于 2013-11-4 16:23:38 | 显示全部楼层 来自: 中国浙江金华
你画的引导线位置不对
 楼主| 发表于 2013-11-4 20:44:30 | 显示全部楼层 来自: 中国辽宁沈阳
谢谢各位大侠了     问题解决了    我用了边界条件起始和结束都与面向切    谢谢大侠们了
发表于 2013-11-6 19:10:10 | 显示全部楼层 来自: 中国吉林长春
你可以 新建一个基准面  然后画图形 和 路径  扫描就可以了
 楼主| 发表于 2013-11-7 08:54:49 | 显示全部楼层 来自: 中国辽宁沈阳
谢谢了已经解决了
发表回复
您需要登录后才可以回帖 登录 | 注册

本版积分规则


Licensed Copyright © 2016-2020 http://www.3dportal.cn/ All Rights Reserved 京 ICP备13008828号

小黑屋|手机版|Archiver|三维网 ( 京ICP备2023026364号-1 )

快速回复 返回顶部 返回列表