QQ登录

只需一步,快速开始

登录 | 注册 | 找回密码

三维网

 找回密码
 注册

QQ登录

只需一步,快速开始

展开

通知     

全站
11天前
查看: 2118|回复: 8
收起左侧

[求助] 法兰与筒体焊接工装

[复制链接]
发表于 2013-10-19 16:34:11 | 显示全部楼层 |阅读模式 来自: 中国河北廊坊

马上注册,结识高手,享用更多资源,轻松玩转三维网社区。

您需要 登录 才可以下载或查看,没有帐号?注册

x
' V1 h* M- Q3 y+ v* i
$ B$ d9 U6 K/ {% i, {  E% j
 楼主| 发表于 2013-10-19 16:38:25 | 显示全部楼层 来自: 中国河北廊坊

RE: 法兰与筒体焊接工装

本帖最后由 hujianqiu1981 于 2013-10-19 16:45 编辑
# W6 q7 @( h1 I  i9 A: V6 {( A, H; w) e$ w

* \& Q- a5 _0 d% d6 v- J* F
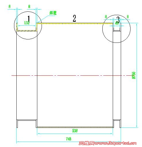
1 {; ?$ B+ Z3 h6 ?% q0 l' U# [1和2怎样做工装保证同心 谢谢! 焊接工装.rar (28.09 KB, 下载次数: 16)
发表于 2013-10-20 17:13:34 | 显示全部楼层 来自: 中国山西太原
1和2都不是圆形,如何同心?
焊接工装.jpg
 楼主| 发表于 2013-10-21 07:07:56 | 显示全部楼层 来自: 中国河北廊坊
1(圆形法兰)、2(圆筒)和3(圆形法兰)如何做工装简便
发表于 2013-10-22 16:25:13 | 显示全部楼层 来自: 中国山西太原
先卷成圆筒2,校正、整圆,再卷成1、3类似槽钢圈,以圆筒为基准点焊、找正、焊接二钢圈。
发表于 2013-10-28 15:46:27 | 显示全部楼层 来自: 中国河南安阳
发个工件图啊!一般直接焊就行,都是焊后才加工嘛!
发表于 2013-11-4 07:51:49 | 显示全部楼层 来自: 中国安徽马鞍山
:):):):)
发表于 2014-1-29 17:07:04 | 显示全部楼层 来自: 中国北京
“1(圆形法兰)、2(圆筒)和3(圆形法兰)如何做工装简便 ?”8 G5 {  N- d5 S6 }5 c. l

) D( r+ j! e  E* ^; c1 o# d* s3 I  |+ t8 B
圆形法兰与圆筒加工成轴孔配合公差+轴肩,这样焊接什么工装都没有也是可以的。这简便否?
发表于 2014-2-14 22:18:04 | 显示全部楼层 来自: 中国辽宁大连
焊后,车一下就同轴了
发表回复
您需要登录后才可以回帖 登录 | 注册

本版积分规则


Licensed Copyright © 2016-2020 http://www.3dportal.cn/ All Rights Reserved 京 ICP备13008828号

小黑屋|手机版|Archiver|三维网 ( 京ICP备2023026364号-1 )

快速回复 返回顶部 返回列表