QQ登录

只需一步,快速开始

登录 | 注册 | 找回密码

三维网

 找回密码
 注册

QQ登录

只需一步,快速开始

展开

通知     

查看: 2715|回复: 7
收起左侧

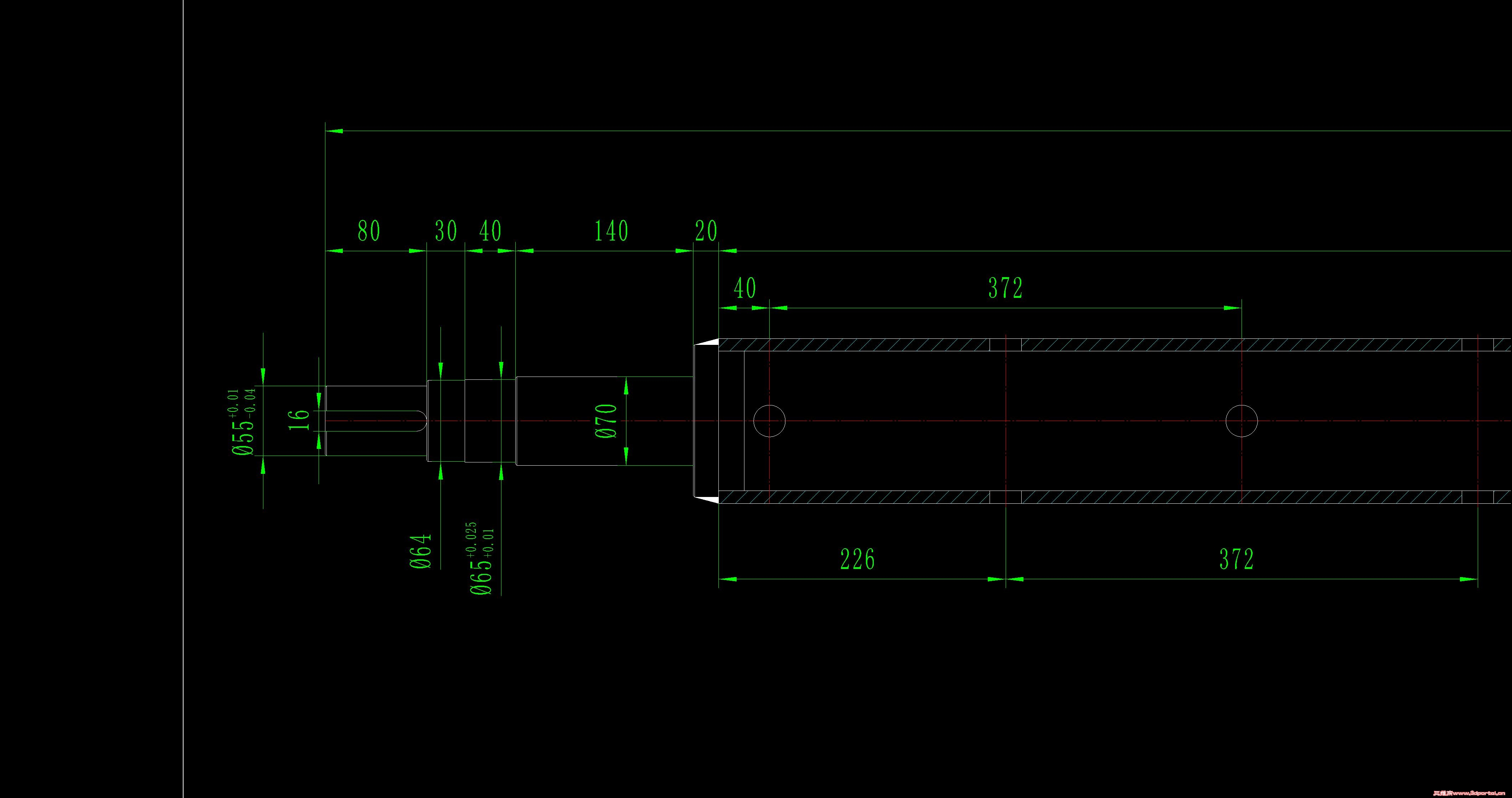
[已解决] 请高手支招;原来直径符号是这样Φ;重装系统后变成图片中的样子了;如何改回来;...

[复制链接]
发表于 2013-6-27 15:42:56 | 显示全部楼层 |阅读模式 来自: 中国河北邯郸

马上注册,结识高手,享用更多资源,轻松玩转三维网社区。

您需要 登录 才可以下载或查看,没有帐号?注册

x
谢谢,请高手支招;不改回来别扭;卸载,从装还是老样子;以前是一个0一个竖杠;现在是一个0一个斜杠;郁闷!
主轴1234.JPG
发表于 2013-6-27 17:21:34 | 显示全部楼层 来自: 中国浙江金华
把文本风格设置一下,西文字体用楷体试试。1 J8 P/ @% T) Z4 {( Y
11.jpg
12.jpg

评分

参与人数 1三维币 +3 收起 理由
wlkr + 3 应助

查看全部评分

发表于 2013-6-28 16:15:44 | 显示全部楼层 来自: 中国山东聊城
楼上正解
发表于 2013-6-28 21:03:13 | 显示全部楼层 来自: 中国上海
对头,是在标注尺寸的那里修改
 楼主| 发表于 2013-6-29 09:34:10 | 显示全部楼层 来自: 中国河北邯郸
swsxz 发表于 2013-6-27 17:21 static/image/common/back.gif
# ]5 g5 K' z* r5 `8 ]) F把文本风格设置一下,西文字体用楷体试试。

: ^* {- T7 \$ r- P$ l; M多谢指点,完美解决!
 楼主| 发表于 2013-6-29 09:36:55 | 显示全部楼层 来自: 中国河北邯郸
wlkr 发表于 2013-6-28 16:15 static/image/common/back.gif- R  A/ j8 p0 o( q
楼上正解

3 B; o; J+ Q3 d( J* q; L7 k# z& Y多谢指点;已解决!
 楼主| 发表于 2013-6-29 09:37:31 | 显示全部楼层 来自: 中国河北邯郸
湘西¥霸匪 发表于 2013-6-28 21:03 static/image/common/back.gif
$ g* W% @0 |2 U7 b5 ]8 m对头,是在标注尺寸的那里修改
# |, O* B5 D% o& @3 F7 O2 E; f
谢谢指点,已解决!
发表于 2013-6-29 10:35:21 | 显示全部楼层 来自: 中国江苏无锡
小问题以前没碰到,但是学习了。
发表回复
您需要登录后才可以回帖 登录 | 注册

本版积分规则


Licensed Copyright © 2016-2020 http://www.3dportal.cn/ All Rights Reserved 京 ICP备13008828号

小黑屋|手机版|Archiver|三维网 ( 京ICP备2023026364号-1 )

快速回复 返回顶部 返回列表