QQ登录

只需一步,快速开始

登录 | 注册 | 找回密码

三维网

 找回密码
 注册

QQ登录

只需一步,快速开始

展开

通知     

查看: 2499|回复: 4
收起左侧

[求助] 车床主轴D8 A28的尺寸

[复制链接]
发表于 2013-6-6 11:51:43 | 显示全部楼层 |阅读模式 来自: 中国福建厦门

马上注册,结识高手,享用更多资源,轻松玩转三维网社区。

您需要 登录 才可以下载或查看,没有帐号?注册

x
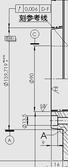
大家好,是这样的,我司有一台沈阳一机的6150数控车床,我们加工的产品要用工装,不需要卡盘,这样问题就来了,我想知道那个连接的地方的尺寸,那里是锥度的,不好测啊,大大可以提供主轴图纸给我吗?我的QQ是827760578,谢谢!
发表于 2013-6-6 12:19:35 | 显示全部楼层 来自: 中国湖北黄冈
机床说明书上应该有该尺寸。或者查用所配的卡盘型号找尺寸。将所配卡盘型号写上来。

评分

参与人数 1三维币 +2 收起 理由
虎强 + 2 积极参与

查看全部评分

发表于 2013-6-6 13:17:31 | 显示全部楼层 来自: 中国江西九江
车床主轴
! \* E' k' P0 Q4 i; C' ^. \+ b# X( t) k3 \6 F
1-1.jpg

评分

参与人数 1三维币 +3 收起 理由
虎强 + 3 技术讨论

查看全部评分

发表于 2013-6-6 19:50:35 | 显示全部楼层 来自: 中国安徽合肥
宝鸡6150。应该一样的。可以校核下尺寸。
2 a  _( g/ ]# ^% ~' F
QQ截图20130606194842.gif
QQ截图20130606194852.gif

评分

参与人数 1三维币 +4 收起 理由
asdolmlm + 4 参与

查看全部评分

 楼主| 发表于 2013-6-9 10:28:18 | 显示全部楼层 来自: 中国福建厦门
谢谢,各位大大啊,这个好像都不对,我自己查了一下,说明书是没有的,我这里有拍了2张图纸,好像不准,正在自己测试
QQ图片20130609102340.jpg
QQ图片20130609102336.jpg
发表回复
您需要登录后才可以回帖 登录 | 注册

本版积分规则


Licensed Copyright © 2016-2020 http://www.3dportal.cn/ All Rights Reserved 京 ICP备13008828号

小黑屋|手机版|Archiver|三维网 ( 京ICP备2023026364号-1 )

快速回复 返回顶部 返回列表