QQ登录

只需一步,快速开始

登录 | 注册 | 找回密码

三维网

 找回密码
 注册

QQ登录

只需一步,快速开始

展开

通知     

查看: 1275|回复: 0
收起左侧

[求助] 该如何正确设定打印的线宽?在哪里修改?

[复制链接]
发表于 2013-5-23 14:01:08 | 显示全部楼层 |阅读模式 来自: 中国江苏无锡

马上注册,结识高手,享用更多资源,轻松玩转三维网社区。

您需要 登录 才可以下载或查看,没有帐号?注册

x
请问!, s, z: i* S+ }, [
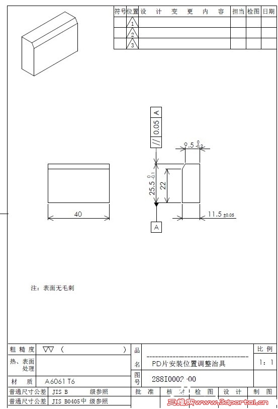
该如何正确设定打印的线宽?在哪里修改?
% ^/ f  Y; z& ~  _我打印出来的效果图框和零件的边框及尺寸标注的线的粗细怎么都是一样的?

& |1 c+ \& z; N- i2 Y) d( w
QQ截图20130523140133.jpg
发表回复
您需要登录后才可以回帖 登录 | 注册

本版积分规则


Licensed Copyright © 2016-2020 http://www.3dportal.cn/ All Rights Reserved 京 ICP备13008828号

小黑屋|手机版|Archiver|三维网 ( 京ICP备2023026364号-1 )

快速回复 返回顶部 返回列表