QQ登录

只需一步,快速开始

登录 | 注册 | 找回密码

三维网

 找回密码
 注册

QQ登录

只需一步,快速开始

展开

通知     

查看: 1454|回复: 5
收起左侧

[求助] 诚心求助如下设计

[复制链接]
发表于 2013-3-25 16:14:19 | 显示全部楼层 |阅读模式 来自: 中国湖北黄石

马上注册,结识高手,享用更多资源,轻松玩转三维网社区。

您需要 登录 才可以下载或查看,没有帐号?注册

x
本帖最后由 kzh168 于 2013-3-26 09:38 编辑
6 m) H1 @) M9 Y% J( f9 M' \- I) @3 D
有个问题要请教大家,因为咱是搞机械设计的真晕,不懂建筑设计,在这里还请教广大设计工程师好友,先谢谢你们了!
1 Y0 |0 c& P! p7 J2 D1 `) q" o3 u! v亲戚家里房子要倒掉了,位置在省道旁边,属于省道边的街区,拆掉房子做新的
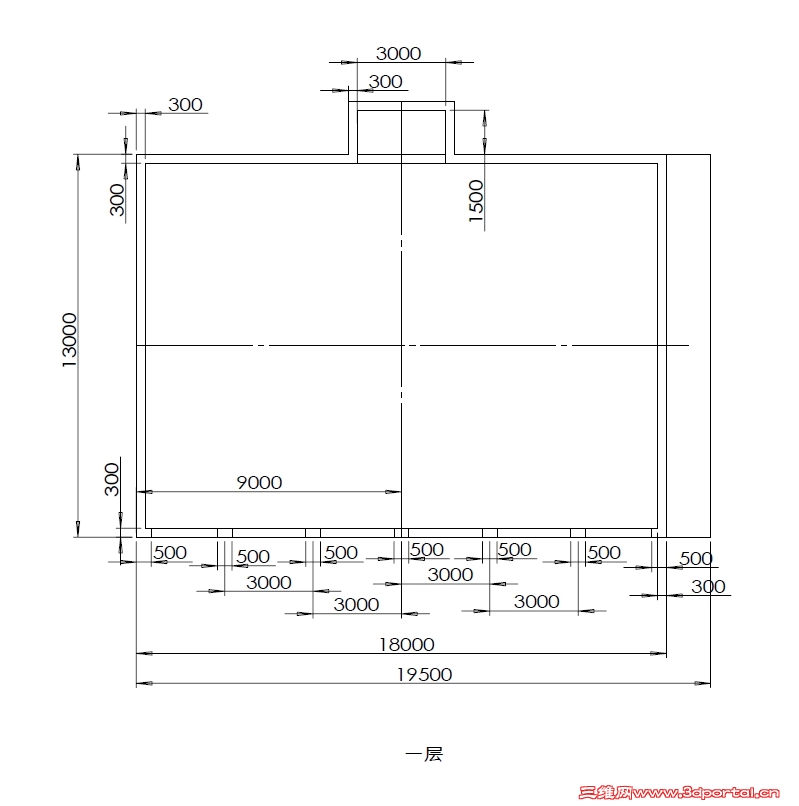
( m( C" V$ L' _: Y3 I  P  a4 g( R申报的占地面积是:宽度19米,深度 13米
' }- U  d3 k& O) O+ n1 z房屋右侧和后面是邻居家,前面是公路,左侧是后面几家的公用路, M. x$ y0 T2 f) y5 k& s: R* K
想房屋前后升1.8米阳台,左右升1.5米阳台
* v) o9 q7 a. T# u4 K全楼总共7层
% `8 G" |. Z4 C9 T' N/ r. s一层高度5米
0 P; a' Q* }7 y- K/ ~# n* B2 W二层高度4.2米/ ]+ Y; J& t5 P( H
三层高度3.5米4 W( W  C( P- m" v8 A. g
四层以上每层高度为3米8 N2 A1 L4 q1 b" H- \% h
全框架结构2 p# j7 z* H! ?0 z9 h7 P6 a
想按下面的方法来规划房屋内部,(上图) * S# W: f( C' |! m
我的问题有如下几个:(我可以上传规格的模型)
" |: \0 R' Y- j* a! ]1、 帮忙做个重力测试,看这样的规划房屋的受力情况
! p" r9 ^- l: l/ r* ^2、 如何架设立柱和横梁% k+ u# W# S  T2 [
3、 使用的各类钢筋的规格# h/ u; A- s) o2 Q! O( u
4、 房屋的成本预算# Y. v# \4 C7 f2 C! }& o* l: G
这里先再次谢谢了,
) W- B. Y3 j$ q$ |" c
! S9 x, X7 i2 N6 [ a1.jpg
9 i# l. L0 x: P% S0 l a2.jpg 5 u/ z/ x: p6 S
a3.jpg
  \; E- f  c5 X a4.jpg 9 ]' ~7 k" B) F, I
a5.jpg 4 x! B6 Y8 S& x& r# F- c
a6.jpg
3 I% L& R! a0 z5 M a7.jpg
9 H8 v% q8 l) G. e: k5 W# u 没办法,做房子借了好多债,是路边的房子只有做着做商业用途了
0 J$ i9 y4 o/ ~: M. n5 \6 K. V想着是这样的,一楼做商品出租,二楼可以做买电器或者做酒楼,或者二三层做酒楼,四层以上全部做标准间的宾馆
; z0 A, w; _- E房屋模型我上传再这里 房.rar (1.19 MB, 下载次数: 2)
发表于 2013-3-25 16:16:14 | 显示全部楼层 来自: 中国北京
机械设计和建筑设计是两码事,你还是请建筑的大师给看看!
 楼主| 发表于 2013-3-25 16:16:38 | 显示全部楼层 来自: 中国湖北黄石
模型在下面
发表于 2013-3-25 16:39:42 | 显示全部楼层 来自: 中国河北张家口
去土建类的论坛问问,这里很少有懂结构的。另外,这个肯定得是有偿服务。
发表于 2013-3-25 20:09:50 | 显示全部楼层 来自: 中国山东青岛
搞机械的 搞建筑的不会  隔行如隔山
发表于 2013-3-25 21:09:45 | 显示全部楼层 来自: 中国河南洛阳
隔行如隔山,搞机械的和搞土建的根本思路都不一样,你得把这个帖子发到土建类的论坛才能找到高人出招。
发表回复
您需要登录后才可以回帖 登录 | 注册

本版积分规则


Licensed Copyright © 2016-2020 http://www.3dportal.cn/ All Rights Reserved 京 ICP备13008828号

小黑屋|手机版|Archiver|三维网 ( 京ICP备2023026364号-1 )

快速回复 返回顶部 返回列表