QQ登录

只需一步,快速开始

登录 | 注册 | 找回密码

三维网

 找回密码
 注册

QQ登录

只需一步,快速开始

展开

通知     

查看: 2754|回复: 13
收起左侧

[已解决] 辛辛苦苦做了一天的CAD内容看不到,急的没办法,渴求高手帮忙

[复制链接]
发表于 2013-2-17 11:03:34 | 显示全部楼层 |阅读模式 来自: 中国湖北十堰

马上注册,结识高手,享用更多资源,轻松玩转三维网社区。

您需要 登录 才可以下载或查看,没有帐号?注册

x
本帖最后由 唐昕晨 于 2013-2-17 15:32 编辑 % @/ m" e( ^2 r

8 T( \0 u& F( |& i: t做了一天的CAD内容看不到,急的没办法,渴求高手帮忙,DWG在下面  D3 U( E5 i4 T

新建文件夹.rar

202 Bytes, 阅读权限: 60, 下载次数: 39

发表于 2013-2-17 11:15:08 | 显示全部楼层 来自: 中国上海
我看了看也没看到东西。
 楼主| 发表于 2013-2-17 11:37:28 | 显示全部楼层 来自: 中国湖北十堰
里面是有几十份图纸的,昨天我还丛里面打印,内容是用的,就是显示比例的问题,看不到。文件有3M多,不会没内容的
发表于 2013-2-17 11:51:14 | 显示全部楼层 来自: 中国广西贺州
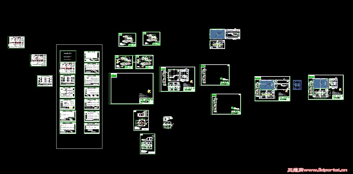
是这些图吗) I$ s( Y& m5 `/ G' B
2013-2-17.jpg 7 s* ]3 Q7 B7 x9 Z

% J# y/ G6 n/ E' q  e& i

评分

参与人数 1三维币 +5 收起 理由
woaishuijia + 5 应助

查看全部评分

 楼主| 发表于 2013-2-17 12:55:21 | 显示全部楼层 来自: 中国湖北十堰
怎么做到的,我搞了几个时,搞不好,大哥。
发表于 2013-2-17 12:59:12 | 显示全部楼层 来自: 中国广西贺州
本帖最后由 2005llnn 于 2013-2-17 17:39 编辑
7 B8 P: p' Y- _" s: e1 j& J
4 r# V" z! n3 W) U! E- e& h7 I8 K) f7 i比较复杂( O. U% o9 s- }
转了个低版本,看能否打开
  x+ D, C( H, g! j 新建文件夹2004.rar (2.57 MB, 下载次数: 4)
 楼主| 发表于 2013-2-17 13:21:21 | 显示全部楼层 来自: 中国湖北十堰
版主太牛了!
发表于 2013-2-17 14:34:55 | 显示全部楼层 来自: 中国湖北武汉
积分少了什么都没得看啊
发表于 2013-8-24 12:17:22 | 显示全部楼层 来自: 中国湖北武汉
hehe,大神,又学了一招% L  J& W/ F: y" {+ T7 s
发表于 2013-8-28 09:17:39 | 显示全部楼层 来自: 中国河南开封
是不是版本的问题啊
发表于 2013-8-29 14:21:24 | 显示全部楼层 来自: 中国江苏南京
版主牛逼啊。
发表于 2013-8-31 22:26:41 | 显示全部楼层 来自: 中国上海
哈哈,楼主太有才了
发表于 2013-9-2 16:49:41 | 显示全部楼层 来自: 中国江苏苏州
高手在这里呵呵
发表于 2013-9-2 22:27:27 | 显示全部楼层 来自: 中国四川成都
不错,谢谢分享!7 o7 V! C& B$ u
这个经验值得收藏。
发表回复
您需要登录后才可以回帖 登录 | 注册

本版积分规则


Licensed Copyright © 2016-2020 http://www.3dportal.cn/ All Rights Reserved 京 ICP备13008828号

小黑屋|手机版|Archiver|三维网 ( 京ICP备2023026364号-1 )

快速回复 返回顶部 返回列表