QQ登录

只需一步,快速开始

登录 | 注册 | 找回密码

三维网

 找回密码
 注册

QQ登录

只需一步,快速开始

展开

通知     

查看: 9720|回复: 15
收起左侧

[求助] 为什么这个旋转特征中的那个”薄壁“老是去不掉。

[复制链接]
发表于 2012-12-26 01:07:21 | 显示全部楼层 |阅读模式 来自: 中国广东江门

马上注册,结识高手,享用更多资源,轻松玩转三维网社区。

您需要 登录 才可以下载或查看,没有帐号?注册

x
本帖最后由 keilei001 于 2012-12-26 01:14 编辑 : Z! c' l9 L+ w* `' y( m* R1 _
6 {6 F' \+ b0 {& \' W  ^
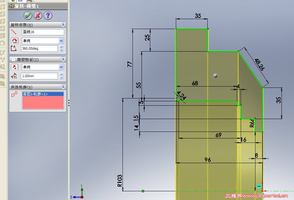
练习画一零件,用旋转基体来生成一个旋转特征,没想到硬是给加了个薄壁。8 L/ X2 N; s7 z3 E6 H
我以为是草图没封闭,反复检查哪里没封闭,检查草图合法性也没找到问题,但这个薄壁选项就是去不掉。2 e/ @/ W3 X- i. a! t# x
搞来搞去头都大了,当然可以重新画一个,但我想知道其中的原因,请教大家这究竟是怎么一回事。, B; S& @, L2 e, A/ |$ c/ \
0 `' E% p* f9 F1 [9 L
Snap1.jpg
# ~6 V' S' W$ g: z* e4 D2 @1 X' R; A; J$ Z! x" c( F7 @/ D
Snap2.jpg : G* n! ~. _; `

  T. l/ F" s1 c6 E+ N# f( _4 y Snap3.jpg
9 O7 |  u, B" V: \" `. d( l* m2 I& a' h7 ~' ?
07版源文件
7 W3 J! g9 E. u. `- [3 x 有问题.rar (75.73 KB, 下载次数: 17)
发表于 2012-12-26 01:33:38 | 显示全部楼层 来自: 中国四川攀枝花
本帖最后由 pzhzs 于 2012-12-26 01:35 编辑 . l9 b+ m; q" l
' J1 t2 M2 ~: f: ^/ ]0 [
2013版里,直接利用草图1就能做出旋转特征,一点问题都没有。( T/ o* D- R' m/ A  d1 u
快照1.png : m/ @# ]$ j$ C4 \3 \
快照2.png 3 `. n) ^" N7 S, u8 M$ @; F
 楼主| 发表于 2012-12-26 01:54:47 | 显示全部楼层 来自: 中国广东江门
pzhzs 发表于 2012-12-26 01:33 static/image/common/back.gif# l! V5 A4 p! p; `( B
2013版里,直接利用草图1就能做出旋转特征,一点问题都没有。

, @8 l0 l& j/ Y- ?请问你是在我原图里改的还是另建新零件没问题的呢?
. g4 F! [1 N% c- q9 ]我在2012打开文件还是去不了薄壁,但把草图复制到新零件中却没问题,这究竟是怎么回事?难道原图不能修改吗?
. F9 `+ _0 o! w1 _5 v9 ]6 s* A/ x, {& g9 J8 P+ B. b4 R
Snap1.jpg
 楼主| 发表于 2012-12-26 02:11:15 | 显示全部楼层 来自: 中国广东江门
本帖最后由 keilei001 于 2012-12-26 02:12 编辑 ! U+ x9 n2 Q( G/ D& M, s4 l
, r% U6 B7 ]. C
我想大家画图都追求效率的,在按旋转基体时这个薄壁没任何提示,如果不注意看是很容易疏忽的。6 L" f. S6 }; X" \* i7 v) H
如果在这个特征上做了其他后续的特征,修改不了的话岂不是要推倒重来?就算能修改也要改其他特征的基准面,麻烦也大大的。
发表于 2012-12-26 02:24:42 | 显示全部楼层 来自: 新西兰
那是因為薄壁特徵被打開了,一旦打開後就無法更改,除非將特徵刪除重新建立。5 P8 Y' V: f" Q; p2 J
& L  L$ q; U& p6 w7 Y1 o
你的草圖沒問題。1 s' ~* r, n7 F+ F  C
5 b1 F' P) U; Z, ~2 x/ |5 J8 x

( y7 _) Y* Q/ \6 I$ K3 S6 W& t1 N: C 03.png 8 e$ m1 @# R, W8 }; ]

; S: y+ h& E2 a2 r$ l- n
发表于 2012-12-26 08:10:31 | 显示全部楼层 来自: 中国江苏无锡
你的草图很好,一切正常。' m: M, n4 Q$ ?* ]
20.有问题.gif $ L/ N4 B% W  o( Z* ~/ j: @: t# w
9 P9 n# `1 \& c% y" g% n6 Y

+ r9 k' o+ e, R' Y" e, W4 f
发表于 2012-12-26 08:26:00 | 显示全部楼层 来自: 中国广东东莞
SW真强啊!
发表于 2012-12-26 10:02:08 | 显示全部楼层 来自: 中国浙江温州
5楼的说明是对的,因为之前选过薄壁了,只需将特征删除,重新旋转就可以了!
发表于 2012-12-26 11:17:58 | 显示全部楼层 来自: 中国广东东莞
你草图定意太多改少就可
发表于 2012-12-26 11:18:58 | 显示全部楼层 来自: 中国安徽合肥
我常碰到,取消后下次还有。
发表于 2012-12-26 14:33:39 | 显示全部楼层 来自: 中国天津
没有问题啊 2010 直接打开了
kankan.JPG
发表于 2012-12-26 15:52:31 | 显示全部楼层 来自: 中国广东深圳
可以说是个软件BUG。
 楼主| 发表于 2012-12-27 11:40:30 | 显示全部楼层 来自: 中国广东江门
ugforrest 发表于 2012-12-26 15:52 static/image/common/back.gif
% X  p/ w$ E% a% `( w" @3 d9 y可以说是个软件BUG。
" {3 H* u) j' e  @- o( K! I; S( {
应该加个提示:% B, v* o* @4 R0 _! x3 u- l
该轮廓是开环,是否生成薄壁特征?
 楼主| 发表于 2012-12-27 14:07:28 | 显示全部楼层 来自: 中国广东江门
寂静天花板 发表于 2012-12-27 13:31 static/image/common/back.gif  g7 P8 H$ r* z, F5 p
为什么要提示,生成薄壁特征也是合乎程序设计的,程序只对违反设定规则的建模有提示的,客户需不需要,那 ...

7 y- ~8 K2 g; z5 L2 u; K( ]) j2 T3D软件不是吹嘘可以很方便地进行修改的吗?$ Z* p/ L4 @2 @/ ?) R/ L9 f
比如这图我出错了,我把草图修改后应该允许把这个薄壁去掉。
+ p. V8 k, b: W* }  @. S6 Q$ g) w人都有疏忽大意的时候,我认为软件也要人性化,软件发展的必然趋势是软件适应人而不是人适应软件。
6 @% c7 U# a, m' ^  H当然我刚学这软件,上面说的也许是谬论。
发表于 2012-12-27 14:56:13 | 显示全部楼层 来自: 中国广东东莞
是人用电腦.不是电腦用人
 楼主| 发表于 2012-12-27 21:37:26 | 显示全部楼层 来自: 中国广东江门
寂静天花板 发表于 2012-12-27 19:29 static/image/common/back.gif& @0 G! Q  V, \( j$ n6 M; L; [! }: A
你马虎了是你的事,别忘了,软件叫计算机辅助设计,是辅助设计,你要不薄壁特征那是你的事,有人需要啊, ...

% H( @2 O+ L4 L% w8 A8 E有道理,软件的BUG存在是合理的,也不必去改进,人是可以适应的。
发表回复
您需要登录后才可以回帖 登录 | 注册

本版积分规则


Licensed Copyright © 2016-2020 http://www.3dportal.cn/ All Rights Reserved 京 ICP备13008828号

小黑屋|手机版|Archiver|三维网 ( 京ICP备2023026364号-1 )

快速回复 返回顶部 返回列表