QQ登录

只需一步,快速开始

登录 | 注册 | 找回密码

三维网

 找回密码
 注册

QQ登录

只需一步,快速开始

展开

通知     

全站
6天前
查看: 3050|回复: 5
收起左侧

[求助] 非标检具设计学习从哪开始学呢

[复制链接]
发表于 2012-12-17 13:29:34 | 显示全部楼层 |阅读模式 来自: 中国重庆

马上注册,结识高手,享用更多资源,轻松玩转三维网社区。

您需要 登录 才可以下载或查看,没有帐号?注册

x
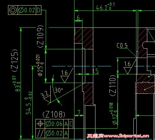
   没接触过检具设计,现在让我设计个 位置度检具,真是不知道怎么下手啊。看了下GB8069越来越晕。哎 大虾们,我应该看哪本学习资料呢,可能是我基础太差了吧。还是我太笨呢。
* b( f6 U' C& H' o/ _' p直径25和12这两个的位置度检具。7 Q% N! l4 F2 }
111.jpg
发表于 2012-12-17 13:52:46 | 显示全部楼层 来自: 中国广东东莞
图纸太小,基准A、C、D是什么?在那里?看不清。
' E0 N' C, M% `/ p有本《检验夹具设计-谢诚编著》,可以下载看看。
' b7 ~! q, f" ?# X( y地址: http://www.3dportal.cn/discuz/fo ... 0%BE%DF%C9%E8%BC%C6

评分

参与人数 1三维币 +2 收起 理由
mengfansheng + 2 应助

查看全部评分

 楼主| 发表于 2012-12-17 14:35:49 | 显示全部楼层 来自: 中国重庆
这本书看过也没什么用啊。
111.jpg
发表于 2012-12-17 18:45:00 | 显示全部楼层 来自: 中国山东烟台
精度挺高,建议三坐标检测
发表于 2012-12-17 21:38:12 | 显示全部楼层 来自: 中国广东东莞
楼主3楼的图应该是一张展开图,如果有3D图参考更好。
9 }; k0 s! n+ ?. P1 d2 b但觉得图纸的尺寸、形位公差标注有些不合理:
9 I9 E- k- f' u* {7 Y* R1. 基准A孔的定位长度很短,而上凭平面对它的平行度是0.05mm,造成测不准或废品率高。6 c& d1 e& X: C, _" ?' T  r
2. 基准C本身的平面度是0.05,而左侧面对它的平行度误差也是0.05,造成左平面没有公差。
/ b) _0 m; A, C! b7 j' b3. 左平面的平面度和平行度误差都是0.05,平面度就没有必要标注。
% `: R+ J, O' Y  T/ G7 x# p( E0 ~/ n( P4. 同理,由于基准C本身的平面度是0.05,所以孔54.5-0.02的位置度0.06就太严了,达不到。

评分

参与人数 1三维币 +2 收起 理由
mengfansheng + 2 应助

查看全部评分

发表于 2012-12-24 14:59:54 | 显示全部楼层 来自: 中国江苏苏州
本帖最后由 lonthin 于 2012-12-24 15:01 编辑 2 B! i( q( ^; t, S4 e4 j/ K
tangcarlos3d 发表于 2012-12-17 21:38 http://www.3dportal.cn/discuz/static/image/common/back.gif. T8 d) T  J/ s5 w
楼主3楼的图应该是一张展开图,如果有3D图参考更好。
6 A" r1 z7 m: {8 q: d& D8 T但觉得图纸的尺寸、形位公差标注有些不合理:% f% x" _8 ]# W
1. 基 ...

1 J# a- R) H" Z8 Z/ ]( E4 h! D( l
# c( k$ a, X: ]9 E2. 基准C本身的平面度是0.05,而左侧面对它的平行度误差也是0.05,造成左平面没有公差。
6 ?% c5 j- D( K, r$ f0 w$ ?' B+ H- h' a' A
这位老师的看法好像有些偏颇,基准C的平面度是0.05与左侧面的平行度公差0.05没有关系,因为测量的时候基准是放在标准台面上,实际上只用了基准的3个最高点,基准从C面转移到了测量台上,所以C面的平面度公差是0.05并不能造成左平面没有公差。 不过话虽这样说,但是一般情况下用作基准的面的要求都要比被测量面高一些。
发表回复
您需要登录后才可以回帖 登录 | 注册

本版积分规则


Licensed Copyright © 2016-2020 http://www.3dportal.cn/ All Rights Reserved 京 ICP备13008828号

小黑屋|手机版|Archiver|三维网 ( 京ICP备2023026364号-1 )

快速回复 返回顶部 返回列表