QQ登录

只需一步,快速开始

登录 | 注册 | 找回密码

三维网

 找回密码
 注册

QQ登录

只需一步,快速开始

展开

通知     

全站
7天前
查看: 8368|回复: 52
收起左侧

[求助] 旋喷内部结构 请各位指点下

[复制链接]
发表于 2012-11-28 12:49:16 | 显示全部楼层 |阅读模式 来自: 中国江西南昌

马上注册,结识高手,享用更多资源,轻松玩转三维网社区。

您需要 登录 才可以下载或查看,没有帐号?注册

x
本帖最后由 股海一客 于 2012-11-29 12:41 编辑
: u5 ~4 S, F0 |  O: f8 g/ Y( K; |' b9 T/ V  s, a& l: o
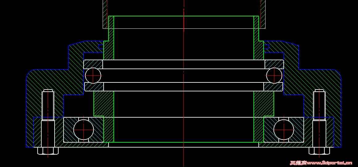
这个是一个旋转结构   我认为有些地方不是很好   但是这个是一直生产使用的老产品,所以我不敢否认,还请给位大师指点下  我觉得两个轴承放的不是很好,应该对调下
8888888888888888.jpg
9999999999999.jpg
总装.jpg
底座装配体.jpg
发表于 2012-11-28 14:50:04 | 显示全部楼层 来自: 中国广东云浮
楼主起码要说说你为什么这么认为啊。
( _3 L) R) K' X1 e8 P从图上看,看不出需要调换的理由(内套零件那端不能受力或偏移将决定推力球轴承所处的位置)。而且要注意深沟球轴承外径比推力球轴承的大,调换后要重新考虑装配方式,在总装配上是否可行?% C1 O( [' s7 z4 R
还有这个示意图太差啦,该隐藏的线没有隐藏,剖面线方向有问题(比如轴承内圈、外圈的剖面线方向相反才好),螺纹长度也不够,深沟球轴承看起来就像是随便放的,这个装置也没有密封,不知道是不是不需要了。

评分

参与人数 1三维币 +5 收起 理由
虎强 + 5 积极讨论

查看全部评分

发表于 2012-11-28 17:04:17 | 显示全部楼层 来自: 中国广东深圳
看图表示的是不是中间零件固定不动,而边部零件旋转啊!
 楼主| 发表于 2012-11-28 19:03:12 | 显示全部楼层 来自: 中国山西吕梁
oypopen 发表于 2012-11-28 14:50 static/image/common/back.gif( }; e( ?+ K2 @6 C( M+ B6 b0 n
楼主起码要说说你为什么这么认为啊。0 n' B4 G( P/ W# w0 D: b& O
从图上看,看不出需要调换的理由(内套零件那端不能受力或偏移将决定 ...

: Q' \( K5 T3 ]: a3 L: L* J这个图是我随意做的  轴承的剖面线是CAXA里面调出来了的,这个我没有注意 按理应该是不同方向的。我就是想表达出上面的推力球轴承没有起到它自身的作用,中间内套是旋转的、下面有个底座装了一个深沟球轴承、内套是压进去的,而内套的这个台阶上面却装了个推力球轴承,本人认为深沟球轴承也可以,内套上面有螺纹的  还要装个喷头的
 楼主| 发表于 2012-11-28 19:04:25 | 显示全部楼层 来自: 中国山西吕梁
jonssen.zhang 发表于 2012-11-28 17:04 static/image/common/back.gif
( I0 u! f# _. W; J1 _! o$ Z看图表示的是不是中间零件固定不动,而边部零件旋转啊!
3 a/ w1 o3 p/ p6 M  ]
中间的旋转    边上的不动
发表于 2012-11-29 08:32:31 | 显示全部楼层 来自: 中国广东云浮
股海一客 发表于 2012-11-28 19:03 static/image/common/back.gif
3 L$ y3 |+ W  R. M/ b  Q9 m这个图是我随意做的  轴承的剖面线是CAXA里面调出来了的,这个我没有注意 按理应该是不同方向的。我就是想 ...
6 f4 y# v# {" b
你还没看清“内套零件那端不能受力或偏移将决定推力球轴承所处的位置”这句话的意思呢。3 i6 L+ |3 I8 I0 h
要注意深沟球轴承的内圈是可以偏移的,所以就有2种情况:
( y7 W1 n1 v3 q1、内套零件不能往喷头方向移动,但可以反方向偏移。这样就把推力球轴承放在上面,就是你现在的图。( A" O' N7 y. v- @* g$ |
2、内套零件不能往喷头反方向移动,但可以往喷头方向偏移,这样就按你说的调换2个轴承了。6 h8 l9 B: X0 ~4 w+ f. X* v
总的来说,放那个位置不是看你怎么安装,而是你机器设计的需要。

评分

参与人数 1三维币 +5 收起 理由
虎强 + 5 技术讨论

查看全部评分

发表于 2012-11-29 09:57:47 | 显示全部楼层 来自: 中国山西太原
本帖最后由 gaoyns 于 2012-11-29 10:08 编辑
" r1 o8 r3 p( c0 Z
: b" e0 B' n# S" r& x) \% S二轴承的装配位置没错,图中有些问题:
; G& f1 y3 q" u: [' {1  推力轴承两个座圈的位置装反了,上面的座圈不旋转,与套有间隙、外圈与孔过渡配合;下面的座圈与轴一起转,是过渡配合,外径与孔是间隙配合。图中画的正相反,下圈内孔大,上圈内孔小。
- h" A7 C: O' \1 i2  深沟轴承外圈无孔配合,如何承受径向力?6 }) [! t0 L4 p# @+ X5 V0 L
3  螺栓不知有什么用,无轴承盖。/ }5 F3 s0 y* W3 f8 X4 x
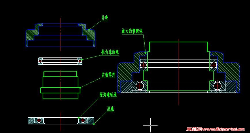
这种结构应像下图那样:
止推轴承结构.jpg

评分

参与人数 1三维币 +5 收起 理由
虎强 + 5 技术讨论

查看全部评分

发表于 2012-11-29 11:22:18 | 显示全部楼层 来自: 中国天津
本帖最后由 flowerinrr 于 2012-11-29 11:27 编辑
0 m3 U/ K) Z: Y
股海一客 发表于 2012-11-28 19:04 static/image/common/back.gif3 L! m7 F! @0 z3 [6 |% J
中间的旋转    边上的不动
7 B, O; [% ^) V+ I3 `4 H- F& o# Q
如果 中间旋转 边上不动 , 那个单向推力轴承就安装的不对 再有这个图也不清楚力是怎么施加的。9 a* A8 _4 ?' }! G0 V5 {
如果只是画法有问题 , 实际使用中 这种方法还是可行的 ; @) B7 D0 O+ |  ^. ~. g
1 j" _$ N3 B4 b$ u' b
我曾经使用过 51122 和 61210 配合 单向4~5吨 没有问题 旋转不是很快300~400转/分  时问题不是很大

评分

参与人数 1三维币 +5 收起 理由
虎强 + 5 欢迎讨论

查看全部评分

 楼主| 发表于 2012-11-29 12:31:08 | 显示全部楼层 来自: 中国江西南昌
本帖最后由 股海一客 于 2012-11-29 12:43 编辑
2 }2 h! Q4 [* |, I
oypopen 发表于 2012-11-29 08:32 http://www.3dportal.cn/discuz/static/image/common/back.gif' q+ G/ Q6 K) Y0 ?( X( k, v
你还没看清“内套零件那端不能受力或偏移将决定推力球轴承所处的位置”这句话的意思呢。
7 r! J2 q: r) b要注意深沟球轴 ...
' k4 W1 r! |% U) _$ a3 ^- G

1 \0 s; i# X* M8 t4 v# F我从新画了一个示意图  没有准确的尺寸标准  大概就是这样,我总是感觉那个推力球轴承没有用到它的作用     深沟球轴承可以代替的了,请高手指教下       画图方面还有问题吗
7 R) ]5 `' V6 f( Q) p1 v
8888888888888888.jpg
 楼主| 发表于 2012-11-29 12:38:28 | 显示全部楼层 来自: 中国江西南昌
gaoyns 发表于 2012-11-29 09:57 static/image/common/back.gif+ A$ j# [; e3 B% {' u- a/ {
二轴承的装配位置没错,图中有些问题:
: z& w0 x3 C! b+ d1  推力轴承两个座圈的位置装反了,上面的座圈不旋转,与套有间隙、 ...
9 |# |" r- p1 g
大师  好眼力连推力球轴承那个都看到了   可能是我没有画好那个示意图   现在从新画过了 更新了  你再看下,多多指教
 楼主| 发表于 2012-11-29 12:44:11 | 显示全部楼层 来自: 中国江西南昌
flowerinrr 发表于 2012-11-29 11:22 static/image/common/back.gif1 D3 X2 {9 _  p# y) d7 M! @8 v
如果 中间旋转 边上不动 , 那个单向推力轴承就安装的不对 再有这个图也不清楚力是怎么施加的。
3 K. H0 |" h" j. i; d, @* J3 s! m/ @如果只是 ...
/ [7 V( t, p0 {  V' t! p
我从新更新了图纸  你再看下   多多指教
发表于 2012-11-29 13:12:06 | 显示全部楼层 来自: 中国天津
本帖最后由 flowerinrr 于 2012-11-29 13:19 编辑 / z7 z1 M2 z' X' F* D9 Q

) O( m7 W/ ~/ E) @! z如果这次你画的没有问题 这个单向推力轴承使用的的确有问题 。在新图中根本没有起作用 还有这个装置 受力为轴和喷嘴(我看) 。, |$ J4 @- {- G, }

- t0 @0 S  z" Q6 m( @你的新图不知道 是实际还是大概图 , 原则上来说 深沟球 是不能承受径向力的 ,实际使用 不可能做到。所以我在做装置的时候也不是绝对的
1 Q! g. _# E& W5 u4 v6 |+ R上面我提到的那个装置 在下行时,对零件施力 上行时 由于有下面的转动轴 要承受转动轴自身重力 大约30 KG 左右 问题也不大

评分

参与人数 1三维币 +5 收起 理由
虎强 + 5 欢迎讨论

查看全部评分

 楼主| 发表于 2012-11-29 13:17:58 | 显示全部楼层 来自: 中国江西南昌
flowerinrr 发表于 2012-11-29 13:12 static/image/common/back.gif& @- Y7 p- L) D1 W  k6 I+ a
如果这次你画的没有问题 这个单向推力轴承使用的的确有问题 。在新图中根本没有起作用 还有这个装置 受力为 ...
! B/ }0 G! G- Q; E1 }4 z3 f
这次图应该是没问题了 形状没错  最多也就是尺寸有点偏差  受力为轴  你是说内套吗?  我就是认为那个地方没有发挥出推力球轴承的作用
发表于 2012-11-29 13:21:55 | 显示全部楼层 来自: 中国天津
股海一客 发表于 2012-11-29 13:17 static/image/common/back.gif
) X+ |. Z+ [& V8 H$ U这次图应该是没问题了 形状没错  最多也就是尺寸有点偏差  受力为轴  你是说内套吗?  我就是认为那个地方 ...

8 c" C) g- I5 P你这次图 问题更大了 这个装置旋转不了啊 我想 画的有问题吧
 楼主| 发表于 2012-11-29 13:26:05 | 显示全部楼层 来自: 中国江西南昌
flowerinrr 发表于 2012-11-29 13:21 static/image/common/back.gif
. U' R. k$ Z% r# @你这次图 问题更大了 这个装置旋转不了啊 我想 画的有问题吧

. r( k( @+ K) y9 c4 ?怎么旋转不了  你看的有问题啊  中间那个旋转啊
发表于 2012-11-29 13:30:59 | 显示全部楼层 来自: 中国天津
我上传一下 图片 大概了解一下吧 红色箭头表示手里方向 轴承下面是推力没有照出来 远处是盖子 。盖子上是压头
kankan.JPG

评分

参与人数 1三维币 +3 收起 理由
虎强 + 3 积极讨论

查看全部评分

发表于 2012-11-29 13:35:33 | 显示全部楼层 来自: 中国天津
问题部分我已经用红线画出
8888888888888888.jpg
 楼主| 发表于 2012-11-29 13:37:11 | 显示全部楼层 来自: 中国江西南昌
flowerinrr 发表于 2012-11-29 13:30 static/image/common/back.gif3 t! O6 n9 c  ~+ P  v% v
我上传一下 图片 大概了解一下吧 红色箭头表示手里方向 轴承下面是推力没有照出来 远处是盖子 。盖子上是压 ...
- Y  R' ]* `5 f. u6 J9 n9 a( P. [0 g
我的这个结构与你的不一样  你没看明白吧
 楼主| 发表于 2012-11-29 13:50:25 | 显示全部楼层 来自: 中国江西南昌
flowerinrr 发表于 2012-11-29 13:35 static/image/common/back.gif
% l: h" I# o  Y问题部分我已经用红线画出
9 ?# h$ R" R4 r" S# Z
这个地方有什么问题?  你看了我的部件图吗?
发表于 2012-11-29 15:33:59 | 显示全部楼层 来自: 中国广东云浮
楼主说了那么久,还没有说出为什么你这么认为的原因。既然你觉得没发挥出推力球轴承的作用,那么你认为推力球轴承在这个机构中应该发挥什么作用?靠直觉是根本站不住脚的。, e$ C8 F; O' ^" N6 u1 k
以下是我随便画的草图,现在手头上没有轴承等这类图纸的尺寸,只好大概示意了' x* C9 l/ F0 D8 B) h4 r
未命名.jpg
" M' T' c1 }0 P/ P

评分

参与人数 1三维币 +6 收起 理由
虎强 + 6 鼓励一下,辛苦了

查看全部评分

发表于 2012-11-29 17:01:24 | 显示全部楼层 来自: 中国山西太原
楼主应首先说明的问题是推力轴承受的轴向力的方向,按图是向上或是向下。
: t; Y* @9 X. Q( y2 q% e/ M7 u. p如果轴向力向下,你这个推力轴承就没用了,因为最终作用到深沟轴承上了。# Y+ N; I% F8 F" `5 j
如果轴向力向上,推力轴承的上座圈上面还有空位,也起不到止推作用,应该像楼上那样画才对。

评分

参与人数 1三维币 +5 收起 理由
虎强 + 5 鼓励讨论

查看全部评分

 楼主| 发表于 2012-11-29 19:14:43 | 显示全部楼层 来自: 中国江西南昌
gaoyns 发表于 2012-11-29 17:01 static/image/common/back.gif
. S" w+ t4 V' a! Q5 i# F3 A楼主应首先说明的问题是推力轴承受的轴向力的方向,按图是向上或是向下。
; t0 N) v; o5 l/ s如果轴向力向下,你这个推力轴承 ...

3 u4 P, w; X6 P# M( l8 G( k5 Z轴向力向下  就是一个重力500N,所以我才一致认为这个推力球轴承没有用处
 楼主| 发表于 2012-11-29 20:50:00 | 显示全部楼层 来自: 中国江西南昌
本帖最后由 股海一客 于 2012-11-29 20:53 编辑 - i0 s/ t1 U. N! L$ U
oypopen 发表于 2012-11-29 15:33 http://www.3dportal.cn/discuz/static/image/common/back.gif
; D7 P: b3 i7 P- T6 H$ n. \5 H楼主说了那么久,还没有说出为什么你这么认为的原因。既然你觉得没发挥出推力球轴承的作用,那么你认为推力 ...

/ ?! h) j* c, P# t/ N) F
; Y2 l6 k. e5 _9 K我的推力轴承作用  :轴向力向下,推力轴承就没用了,因为最终作用到深沟轴承上了,  楼上分析的不错。     
4 N* L0 O3 y+ N大师指点的好  多谢  
1.jpg

评分

参与人数 1三维币 +5 收起 理由
虎强 + 5 积极回应,有始有终,鼓励一下

查看全部评分

 楼主| 发表于 2012-11-29 20:55:44 | 显示全部楼层 来自: 中国江西南昌
flowerinrr 发表于 2012-11-29 13:35 static/image/common/back.gif
6 k: q$ z* i* Q5 u& v* h! A' z问题部分我已经用红线画出
) j0 m( }6 z  b# |, c
你是说没有压住深沟球轴承是吧
发表于 2012-11-30 08:31:04 | 显示全部楼层 来自: 中国天津
股海一客 发表于 2012-11-29 20:55 static/image/common/back.gif
  L% e3 S3 a3 |你是说没有压住深沟球轴承是吧

) N7 Q5 M  ~% x' q: E& H. U) {承受轴和喷嘴重量 这两轴承是反了 单向推力轴承没有起作用
9 i, v2 T( n5 j1 Q9 s% ^7 l4 q- |1 W& Y; P3 C; m. g. c
我画出的有问题图 是: 深沟球轴承内外套不能同时都作用在轴承封盖 20 楼那个图你看看 希望对你有帮助

评分

参与人数 1三维币 +3 收起 理由
虎强 + 3 鼓励

查看全部评分

发表回复
您需要登录后才可以回帖 登录 | 注册

本版积分规则


Licensed Copyright © 2016-2020 http://www.3dportal.cn/ All Rights Reserved 京 ICP备13008828号

小黑屋|手机版|Archiver|三维网 ( 京ICP备2023026364号-1 )

快速回复 返回顶部 返回列表