QQ登录

只需一步,快速开始

登录 | 注册 | 找回密码

三维网

 找回密码
 注册

QQ登录

只需一步,快速开始

展开

通知     

全站
5天前
查看: 3369|回复: 16
收起左侧

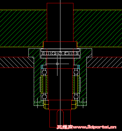
[求助] 帮我看下这个轴承用法对不对?

[复制链接]
发表于 2012-10-31 16:56:43 | 显示全部楼层 |阅读模式 来自: 中国浙江杭州

马上注册,结识高手,享用更多资源,轻松玩转三维网社区。

您需要 登录 才可以下载或查看,没有帐号?注册

x
本帖最后由 erayond 于 2012-10-31 16:57 编辑 ) c# z* w# {6 S5 l  M/ `; e3 C8 E
7 T+ w3 `$ j9 d0 t' s, V3 R
RT,谢谢了!电机带竖直轴向的轴旋转。
) d2 _& ?! a! _2 b0 E  t) H/ D, P: q) H
还有减速机可以直接接这个轴吧。
QQ截图20121031165300.png
发表于 2012-10-31 18:11:47 | 显示全部楼层 来自: 中国黑龙江哈尔滨
深沟球轴承不能承受较大的轴向力,其它的由于负载未知,无法回答。

评分

参与人数 1三维币 +3 收起 理由
虎强 + 3 欢迎讨论

查看全部评分

发表于 2012-10-31 20:01:08 | 显示全部楼层 来自: 中国广东东莞
1. 怎么不直接用圆锥推力轴承?平面轴承的极限转速不高。9 X3 K9 G; [# O. K: M
2. 装配时平面轴承下面一片内径应该与轴配合,上面一片空套在上面。
, N, b. @; |( D' r$ d3. 平面轴承外面的套子应该短一些,以便加油脂和观察。
  x, x; S) }! V8 B  S4. 深沟球轴承内圈不要用锁紧螺母直接锁紧,要加衬套过渡。* W+ }. g1 ?. P( R' i
5. 内部上面的深沟球轴承不好卸下来,应该加工艺孔。

评分

参与人数 1三维币 +5 收起 理由
虎强 + 5 技术讨论

查看全部评分

发表于 2012-10-31 20:08:10 | 显示全部楼层 来自: 中国江苏苏州
中间那个深沟轴承内圈跟轴上的台阶应该有间隙,要不推理轴承就起不到作用,其实那个台阶不需要也可以

评分

参与人数 1三维币 +3 收起 理由
虎强 + 3 技术讨论

查看全部评分

发表于 2012-11-1 09:39:53 | 显示全部楼层 来自: 中国山西太原
1  两个锁紧的圆螺母,不应位于轴承盖的孔内,这样会漏油的,应放在轴承盖以内。
' ~1 F) Z2 P6 m7 `7 a0 C0 w4 Q2  轴承箱应与壳体螺栓固定。. o7 v2 a; X& ]
3  轴向力应由推力轴承承受,深沟轴承只承受径向力。
4 d' G: i9 ?7 q4  推力轴承应安装在轴承箱内靠近上面的深沟轴承,现在的位置推力轴承没有密封。
7 {  z) i1 @7 [5 [" C% U  o4 p, i) I& x5  两个深沟轴承之间有内轴套就行了,不用外圈顶套。
. R( y2 v  J- ^6  带键槽的轴端与减速机用联轴器联接。

评分

参与人数 1三维币 +5 收起 理由
虎强 + 5 技术讨论

查看全部评分

发表于 2012-11-1 09:50:48 | 显示全部楼层 来自: 中国江苏苏州
楼主简单的东西复杂化,此轴除了推力轴那儿其他台阶均可省略,下面的轴承不受轴向力,故锁紧螺母去除,防止轴承掉落的盖板改成平圈即可。隔套旁边的凹槽我认为是多余;推力轴承采用内径不一的那种,上面紧配,下面空套,安装孔深度只要卡下圈即可。中间还有那短隔套多余,上面的孔径适度加大即可。7 r' c% E  j; g( h: L
上面的旋转部分为何要加工台阶孔,直接一个通孔不可以吗?如果空间不够,直接去掉轴的台阶让旋转件压在推力轴上。

评分

参与人数 1三维币 +5 收起 理由
虎强 + 5 技术讨论

查看全部评分

发表于 2012-11-1 13:46:26 | 显示全部楼层 来自: 中国湖南岳阳
本帖最后由 TKG-09 于 2012-11-1 13:48 编辑 / g0 [3 X/ l  P: y- y- p4 ?
$ h3 V. l( Q* p% [
电机轴承的配置要示具体情况而定。如果电机不大,根本不用改,直接用就可以。8 B! z9 c) H* E. z- I, c8 V
如果电机很大,轴向力很大,就要另外考虑了。
1.jpg

评分

参与人数 1三维币 +5 收起 理由
虎强 + 5 技术讨论

查看全部评分

发表于 2012-11-1 21:19:34 | 显示全部楼层 来自: 中国广东珠海
高手真多,谢谢
发表于 2012-11-8 11:01:08 | 显示全部楼层 来自: 中国江苏无锡
应该没有问题的   你这是 NKI 或是NX系列的 组合轴承吧  
发表于 2012-11-17 15:25:20 | 显示全部楼层 来自: 中国江苏苏州
太复杂了,用一个圆锥滚子轴承加一深沟球轴承组合一下就行了,不要简单的结构复杂化,达到目的要求,越简单越好!

评分

参与人数 1三维币 +5 收起 理由
虎强 + 5 技术讨论

查看全部评分

发表于 2012-11-17 16:20:47 | 显示全部楼层 来自: 中国河北邢台
可以用,哪有那么复杂
发表于 2012-11-19 14:31:22 | 显示全部楼层 来自: 中国上海
轴承的选用要考虑受力、速度、精度三个方面,通常结构这三点中会有所侧重,要针对侧重点优选。6 C0 o! T: t4 ^8 A4 ?. J) [+ f+ j
比如受力大,转速一般,一定得要用到圆锥滚子推力轴承,如轴向有窜动则需要成对使用。
8 l% V7 T% ^, s1 V( F内部结构的考虑除自身精度上的要求外还要有利于轴承的安装和拆卸,关于后者,你的设计是不良的。

评分

参与人数 1三维币 +5 收起 理由
虎强 + 5 技术讨论

查看全部评分

发表于 2012-11-19 16:15:21 | 显示全部楼层 来自: 中国河北唐山
是否可以取消轴上中间轴承处的台阶?这个地方不应该产生轴向力

评分

参与人数 1三维币 +3 收起 理由
虎强 + 3 技术讨论

查看全部评分

发表于 2012-11-19 21:29:56 | 显示全部楼层 来自: 中国江苏镇江
圆锥滚子轴承成对使用即可

评分

参与人数 1三维币 +2 收起 理由
虎强 + 2 积极参与

查看全部评分

发表于 2012-11-21 10:54:39 | 显示全部楼层 来自: 中国广东佛山
这个东西,装配的时候会呕血啊
发表于 2012-11-22 10:10:30 | 显示全部楼层 来自: 中国河北石家庄
个人感觉 ,有推力轴承,深沟球轴承可以在这使用,两个深沟球轴承之间用一个轴套就行,感觉下端可以不用圆螺母锁紧,直接用端盖顶住。

评分

参与人数 1三维币 +3 收起 理由
虎强 + 3 欢迎讨论

查看全部评分

发表于 2012-12-27 18:14:59 | 显示全部楼层 来自: 中国内蒙古包头
看了半天也没看出来上面是个推力轴承啊!没问题就这样用吧!把一个深沟球轴承和在、推力轴承并到一起去!

评分

参与人数 1三维币 +3 收起 理由
虎强 + 3 欢迎讨论

查看全部评分

发表回复
您需要登录后才可以回帖 登录 | 注册

本版积分规则


Licensed Copyright © 2016-2020 http://www.3dportal.cn/ All Rights Reserved 京 ICP备13008828号

小黑屋|手机版|Archiver|三维网 ( 京ICP备2023026364号-1 )

快速回复 返回顶部 返回列表