QQ登录

只需一步,快速开始

登录 | 注册 | 找回密码

三维网

 找回密码
 注册

QQ登录

只需一步,快速开始

展开

通知     

查看: 910|回复: 1
收起左侧

[求助] 求钣金思想

[复制链接]
发表于 2012-10-18 12:06:03 | 显示全部楼层 |阅读模式 来自: 中国江苏苏州

马上注册,结识高手,享用更多资源,轻松玩转三维网社区。

您需要 登录 才可以下载或查看,没有帐号?注册

x
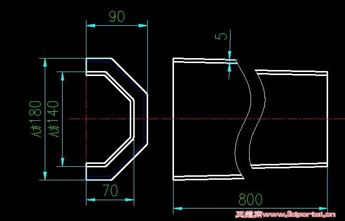
我钣金接触的不多,所以遇到的问题蛮多,以以下示例求钣金思路。
- Q- S5 I" M% |- Y/ W& P9 j. c+ j见附件,希望上传PART(2010或以下版本)
8 V" d+ y5 ^: t' L9 V& l  K这个和大小头,天方地圆应该差不多吧,. {7 T. o9 a$ R  {  }4 ?* F
折弯半径和折弯系数在实际应用有标准可查的吧
2P94LYFW{7{NN[05@%I9[%T.jpg
发表于 2012-10-18 12:31:04 | 显示全部楼层 来自: 中国江苏无锡
这样可以吗?
5 j0 ?- S8 B, J( ]) L# b 18.钣金思路.gif 4 o8 z6 j  x/ Q7 K* J: V$ P

) y, m/ |$ _- n
发表回复
您需要登录后才可以回帖 登录 | 注册

本版积分规则


Licensed Copyright © 2016-2020 http://www.3dportal.cn/ All Rights Reserved 京 ICP备13008828号

小黑屋|手机版|Archiver|三维网 ( 京ICP备2023026364号-1 )

快速回复 返回顶部 返回列表