QQ登录

只需一步,快速开始

登录 | 注册 | 找回密码

三维网

 找回密码
 注册

QQ登录

只需一步,快速开始

展开

通知     

查看: 2229|回复: 4
收起左侧

[已解决] JB7273.1 小波纹手轮 用法是不是这样出图

[复制链接]
发表于 2012-9-29 19:01:55 | 显示全部楼层 |阅读模式 来自: 中国广东深圳

马上注册,结识高手,享用更多资源,轻松玩转三维网社区。

您需要 登录 才可以下载或查看,没有帐号?注册

x
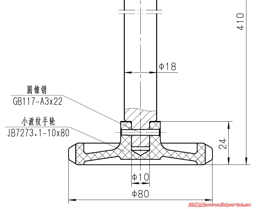
1.png
. d' P9 o7 r& f. F. ~" FRT,销不会掉来吗?
+ T1 A/ k- H' B# G7 w+ e注:实际中是放平来使用的
1 Q+ {* k7 y1 J1 P% B) [. I* ]
发表于 2012-10-1 00:36:12 | 显示全部楼层 来自: 中国广东佛山
本帖最后由 dylackman 于 2012-10-1 00:37 编辑 : Y, |$ A4 `8 C
) p) Z4 Q2 l5 g. y2 T
圆锥销应该不容易掉的,如果还是觉得不保险的话,可以用小端带螺纹的圆锥销,拧上螺母就肯定掉不出来.

评分

参与人数 1三维币 +3 收起 理由
虎强 + 3 技术讨论

查看全部评分

发表于 2012-10-3 16:51:04 | 显示全部楼层 来自: 中国山西太原
1:50圆锥销打紧以后,产生较的磨擦力,而圆锥销掉下来仅是靠其重力,二者比较,重力是很小的,所以不会掉出来。拆卸时还需从小端用力才能打出来。

评分

参与人数 1三维币 +3 收起 理由
虎强 + 3 技术讨论

查看全部评分

 楼主| 发表于 2012-10-10 22:02:09 | 显示全部楼层 来自: 中国广东佛山
dylackman 发表于 2012-10-1 00:36 static/image/common/back.gif
8 L/ n% B( @% L4 J; N) {圆锥销应该不容易掉的,如果还是觉得不保险的话,可以用小端带螺纹的圆锥销,拧上螺母就肯定掉不出来.
4 A$ Z4 _5 f4 C" A3 ?
谢谢,不过小端带螺纹的没找到,大端的倒是有,是为了塞盲孔里取出的
/ K+ h$ k, P/ {7 }5 G$ @8 \7 C
# p  e) ]  t/ s* fLS的,谢谢哈,没接触过圆锥销,看样子应该上挺紧的
发表于 2012-10-11 23:44:23 | 显示全部楼层 来自: 中国广东佛山
egg6600 发表于 2012-10-10 22:02 static/image/common/back.gif
2 }4 h$ M" z6 o) b/ [. A谢谢,不过小端带螺纹的没找到,大端的倒是有,是为了塞盲孔里取出的
; N; U$ ]- {$ A
. I9 B9 D5 r/ C' o% ?) KLS的,谢谢哈,没接触过圆锥销, ...
7 U' ?( {, J0 E+ m' K
还有一个办法,用弹性圆柱销,也不会轻易掉出来,除非你把孔做得太大了。

评分

参与人数 1三维币 +2 收起 理由
虎强 + 2 积极讨论

查看全部评分

发表回复
您需要登录后才可以回帖 登录 | 注册

本版积分规则


Licensed Copyright © 2016-2020 http://www.3dportal.cn/ All Rights Reserved 京 ICP备13008828号

小黑屋|手机版|Archiver|三维网 ( 京ICP备2023026364号-1 )

快速回复 返回顶部 返回列表