QQ登录

只需一步,快速开始

登录 | 注册 | 找回密码

三维网

 找回密码
 注册

QQ登录

只需一步,快速开始

展开

通知     

查看: 1331|回复: 8
收起左侧

[已解决] 工程图标注

[复制链接]
发表于 2012-8-20 08:54:58 | 显示全部楼层 |阅读模式 来自: 中国浙江杭州

马上注册,结识高手,享用更多资源,轻松玩转三维网社区。

您需要 登录 才可以下载或查看,没有帐号?注册

x
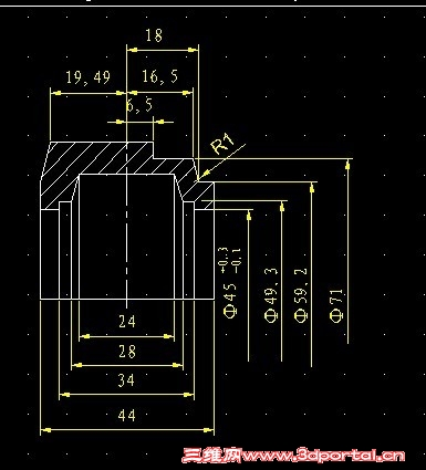
在solidworks工程图中如何实现CAD图中直径的标注
未命名.jpg
发表于 2012-8-20 09:16:02 | 显示全部楼层 来自: 中国四川成都
在要隐藏的尺寸延长线上点右键,选择隐藏延伸线1 P9 }/ f! C, C1 y/ ~& ^
快照67.png
8 R# [6 Z1 x# J" N, ^
7 r4 e% q1 J7 [/ o- C) e5 V: b 快照68.png
4 N9 d; t! i( a在需要隐藏的箭头上点右键,选择隐藏尺寸线
- a0 D0 p( _4 @8 C+ w7 T. F# B 快照69.png
3 t/ ^( z1 r6 Z3 P" l3 [8 e) N* ^6 W
这效果是楼主需要的效果了吧!?
3 `7 E9 V) t/ N6 `! l$ D4 }$ j 快照70.png
" ?6 d: Z# H; _, Q2 M: L# P5 i; z1 D' a

评分

参与人数 1三维币 +3 收起 理由
阿帕奇 + 3

查看全部评分

发表于 2012-8-20 09:37:02 | 显示全部楼层 来自: 中国福建宁德
不知道楼主是不是想这样标注
11.gif
发表于 2012-8-20 10:26:58 | 显示全部楼层 来自: 中国广东潮州
bbaaiiyy 发表于 2012-8-20 09:37 static/image/common/back.gif
! p& C5 Q; q; w, ?% g1 Y( u不知道楼主是不是想这样标注

: u8 k: d3 K! W2 R8 `- I问下。。这是用什么软件做的GIF??清晰度这么好
 楼主| 发表于 2012-8-20 10:45:29 | 显示全部楼层 来自: 中国浙江杭州
pzhzs 发表于 2012-8-20 09:16 static/image/common/back.gif& e0 k4 y0 k8 c
在要隐藏的尺寸延长线上点右键,选择隐藏延伸线

; q3 L1 v- x0 X/ K7 ?) @- e5 v谢谢,要的就是这种结果
 楼主| 发表于 2012-8-20 10:49:29 | 显示全部楼层 来自: 中国浙江杭州
bbaaiiyy 发表于 2012-8-20 09:37 static/image/common/back.gif
! ?6 `: m9 ^& z3 R% g; r) v不知道楼主是不是想这样标注
3 z; g/ P0 s. T/ v0 A' t; M, y: w
谢谢,这个我知道,我想要的效果是二楼的
发表于 2012-8-20 15:32:33 | 显示全部楼层 来自: 中国宁夏银川
太好了,又学了一招
发表于 2012-8-20 22:30:37 | 显示全部楼层 来自: 中国浙江杭州
aj1721 发表于 2012-8-20 10:26 static/image/common/back.gif
/ x2 _) N+ O( y问下。。这是用什么软件做的GIF??清晰度这么好
) W5 M! U" h6 |$ N( z6 F
我也想问这个问题...
发表于 2012-9-12 15:43:54 | 显示全部楼层 来自: 中国湖南湘潭
真牛!
发表回复
您需要登录后才可以回帖 登录 | 注册

本版积分规则


Licensed Copyright © 2016-2020 http://www.3dportal.cn/ All Rights Reserved 京 ICP备13008828号

小黑屋|手机版|Archiver|三维网 ( 京ICP备2023026364号-1 )

快速回复 返回顶部 返回列表