QQ登录

只需一步,快速开始

登录 | 注册 | 找回密码

三维网

 找回密码
 注册

QQ登录

只需一步,快速开始

展开

通知     

查看: 1830|回复: 19
收起左侧

[求助] 扫描收尾怎么收

[复制链接]
发表于 2012-7-30 10:11:33 | 显示全部楼层 |阅读模式 来自: 中国江苏南京

马上注册,结识高手,享用更多资源,轻松玩转三维网社区。

您需要 登录 才可以下载或查看,没有帐号?注册

x
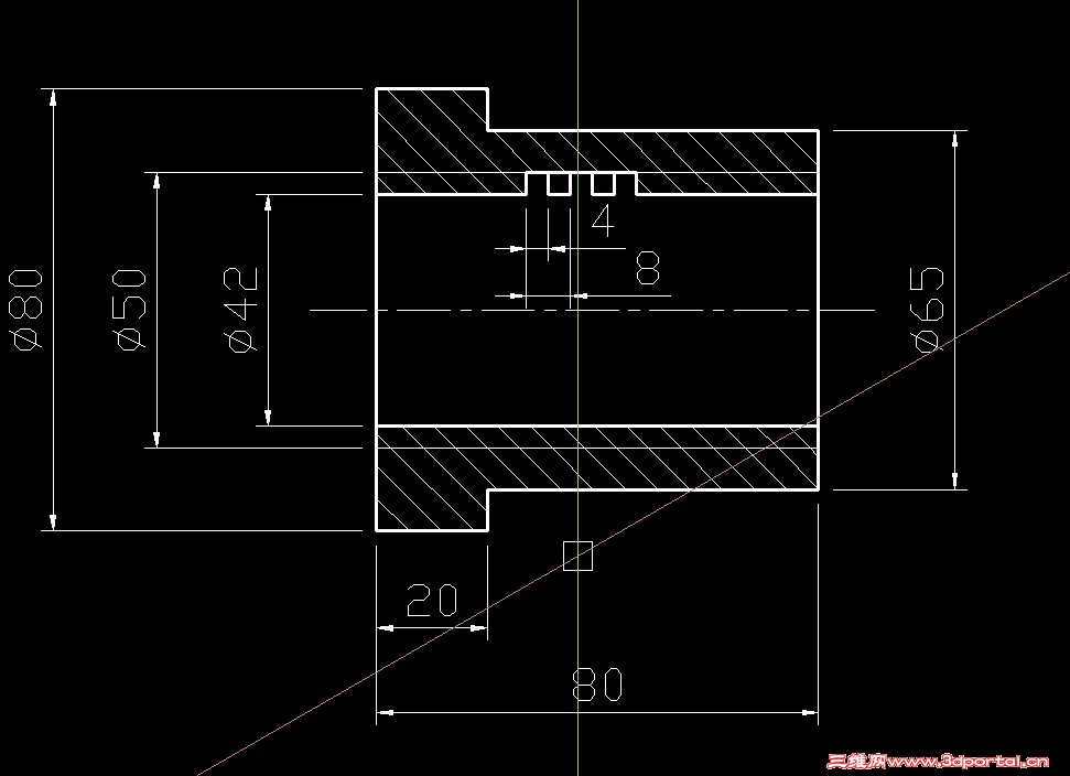
未命名.jpg 我矩形螺纹做出来,头被我切掉了,郁闷!!
2 q9 l; n+ Q# E9 N下面的图就是我想要做的,和我前面求助的帖子的套筒,有内矩形螺纹,我自己搞出来头头被我切掉一块!!郁闷!
3 f) e; l- @$ O8 m& F! R1 w怎么搞啊?最好有教程或者文件,我可以研究下!小弟不才啊!求大神门多多指教!希望三维网越办越好!!!加油: L9 L+ G: G+ _
333顶顶顶顶.jpg * u9 F5 Q( E' \8 R9 x0 Z
9 m: w+ W9 X2 L4 E* e3 p/ [9 P* y8 s
发表于 2012-7-30 11:02:29 | 显示全部楼层 来自: 中国山东济南
是这么个意思吗?
未命名.jpg
 楼主| 发表于 2012-7-30 11:23:58 | 显示全部楼层 来自: 中国江苏南京
3dpsoso 发表于 2012-7-30 11:02 static/image/common/back.gif
5 h1 o7 x7 U. b9 Q! S: l. o6 w% U  m是这么个意思吗?

" C/ v* m. ]5 `4 N从低端切到顶端,但是顶端要是平整的
发表于 2012-7-30 11:42:57 | 显示全部楼层 来自: 中国广东肇庆
本帖最后由 keilei001 于 2012-7-30 11:44 编辑 2 e' P( l3 M! n1 B7 o

7 z( L. ]- r) O1 W" ]9 ], ], j一般来说,只有螺栓用外螺纹才设收尾,传动用的外螺纹和内螺纹不收尾或设置退刀槽。
发表于 2012-7-30 14:08:13 | 显示全部楼层 来自: 中国山东济南
boy-shl 发表于 2012-7-30 11:23 static/image/common/back.gif
3 X- f7 E3 U4 c! W0 ~从低端切到顶端,但是顶端要是平整的

9 W) C9 d# C# P, S% U3 A& l0 Ocad图上不是只有两扣。要平的是什么意思?还是用途说话的明白
 楼主| 发表于 2012-7-30 14:39:28 | 显示全部楼层 来自: 中国江苏南京
keilei001 发表于 2012-7-30 11:42 static/image/common/back.gif
& N8 N" s  u4 W7 Q0 O3 I% @& T一般来说,只有螺栓用外螺纹才设收尾,传动用的外螺纹和内螺纹不收尾或设置退刀槽。
' M+ M1 T: J7 k7 Q% X2 Z, h
明白了!!!!!!!!!!!!!
发表于 2012-7-30 20:56:33 | 显示全部楼层 来自: 中国山东青岛
楼主是这样吗?
零件2.JPG
零件1.JPG
 楼主| 发表于 2012-7-31 08:21:30 | 显示全部楼层 来自: 中国江苏南京
jie7788 发表于 2012-7-30 20:56 static/image/common/back.gif% f3 _$ m4 \  s" v6 i* b
楼主是这样吗?

1 m: ?/ S: [0 M: S我靠,大神啊,好厉害!!!是这样子的!给个教程吧?或者给个文件之类我研究下!最好教程+文件了 呵呵
发表于 2012-7-31 08:30:16 | 显示全部楼层 来自: 中国浙江金华
给个教程吧?或者给个文件之类我研究下
发表于 2012-7-31 09:28:19 | 显示全部楼层 来自: 中国福建漳州
变径螺纹+扫描应该就可以了。
发表于 2012-7-31 10:08:22 | 显示全部楼层 来自: 中国辽宁盘锦
boy-shl 发表于 2012-7-31 08:21 static/image/common/back.gif9 N# Y* j% o3 x: N8 C
我靠,大神啊,好厉害!!!是这样子的!给个教程吧?或者给个文件之类我研究下!最好教程+文件了 呵呵:l ...
# _0 e5 J5 F* F  I- M. W2 B
搜一下以前的帖子,很多介绍的
发表于 2012-7-31 10:23:33 | 显示全部楼层 来自: 中国浙江台州
:good:good:good:good
发表于 2012-7-31 17:43:00 | 显示全部楼层 来自: 中国湖北襄阳
拜托,内螺纹不能用变径吧。0 r  m2 ~* L  o+ p  a+ y
螺纹线上下多画点,然后主体上下口倒角,就看起啦顺眼多了
发表于 2012-8-1 11:07:31 | 显示全部楼层 来自: 中国福建漳州
xflhf 发表于 2012-7-31 17:43 static/image/common/back.gif$ ~. I; [& P' P2 D: w2 U
拜托,内螺纹不能用变径吧。! ?' s- [9 W6 y6 W: T
螺纹线上下多画点,然后主体上下口倒角,就看起啦顺眼多了
. [% _0 M' u5 `! S4 G2 e5 l
这样可否?求指点!对内螺纹不是很清楚 螺纹1.PNG   _' X' v+ ~7 x8 q. F% E. u0 Y/ a* p
螺纹2.PNG
发表于 2012-8-2 15:28:47 | 显示全部楼层 来自: 中国湖北襄阳
ylh3527 发表于 2012-8-1 11:07 http://www.3dportal.cn/discuz/static/image/common/back.gif
, F" y+ W' K& U/ d. Y这样可否?求指点!对内螺纹不是很清楚
& B( Z: j; n3 G, t7 {: {

! z% N6 V, Y& u7 i你的这个没有把原零件切除完整,看看7楼的就知道了。
6 `% R8 U- n8 e, `0 D: l先把内孔倒角,然后建立的螺旋线开始和结束分别超过你零件的上面和下面,然后用螺旋线的开始部分的点做一个基准面,画出牙型,然后扫描切除就行了
发表于 2012-8-2 15:40:11 | 显示全部楼层 来自: 中国福建漳州
xflhf 发表于 2012-8-2 15:28 static/image/common/back.gif7 p1 |. W9 ~# {- F9 r
你的这个没有把原零件切除完整,看看7楼的就知道了。
& v- c' a, g8 R& `) s3 `先把内孔倒角,然后建立的螺旋线开始和结束分别超 ...
. l( B+ N( i- k4 o0 l
他问的是收尾额 我画的也是收尾
发表于 2012-8-2 15:40:37 | 显示全部楼层 来自: 中国湖北襄阳
我试了一下,说的不是很准,只需要建立一个超过原零件上表面的基准面就行了
3 s6 q( F+ D: ~* s6 w, {: ]$ n$ G+ @+ r
未命名.JPG
发表于 2012-8-2 15:41:42 | 显示全部楼层 来自: 中国湖北襄阳
终于会贴图了,内牛满面啊
发表于 2012-8-3 09:04:04 | 显示全部楼层 来自: 中国山东青岛
boy-shl 发表于 2012-7-31 08:21 static/image/common/back.gif
! \: r5 z- J- Y' P. S4 |: V" e我靠,大神啊,好厉害!!!是这样子的!给个教程吧?或者给个文件之类我研究下!最好教程+文件了 呵呵:l ...

$ G/ m7 V6 c: I( W/ I, L9 E你加我QQ吧~ 给你传过去84388557
发表于 2012-8-3 10:08:10 | 显示全部楼层 来自: 中国浙江绍兴
螺纹是用扫描切除来完成的,看一下我做的零件。

螺母.rar

323.37 KB, 下载次数: 12

发表回复
您需要登录后才可以回帖 登录 | 注册

本版积分规则


Licensed Copyright © 2016-2020 http://www.3dportal.cn/ All Rights Reserved 京 ICP备13008828号

小黑屋|手机版|Archiver|三维网 ( 京ICP备2023026364号-1 )

快速回复 返回顶部 返回列表