QQ登录

只需一步,快速开始

登录 | 注册 | 找回密码

三维网

 找回密码
 注册

QQ登录

只需一步,快速开始

展开

通知     

查看: 3671|回复: 14
收起左侧

[分享] 标注文字与线段相交的消隐技巧

[复制链接]
发表于 2006-6-6 20:43:33 | 显示全部楼层 |阅读模式 来自: 中国浙江绍兴

马上注册,结识高手,享用更多资源,轻松玩转三维网社区。

您需要 登录 才可以下载或查看,没有帐号?注册

x
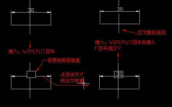
标注文字与线段相交通常的处理方法采用打断来显示文字, 以后编缉时将很麻烦。现采用WIPEOUT命令可不断开线段显示文字.
标注消隐.JPG
发表于 2006-6-6 20:50:45 | 显示全部楼层 来自: 中国辽宁大连
支持 你!!* F( v, |; q7 z, w8 S. s6 m
看看再说!
 楼主| 发表于 2006-6-7 20:52:15 | 显示全部楼层 来自: 中国浙江绍兴
谢了!有好东东多交流
发表于 2006-6-17 14:37:53 | 显示全部楼层 来自: 中国广东江门
试试看再说
头像被屏蔽
发表于 2006-6-17 20:50:38 | 显示全部楼层 来自: 中国江西南昌
提示: 作者被禁止或删除 内容自动屏蔽
发表于 2006-6-18 11:07:01 | 显示全部楼层 来自: 中国山东威海
好方法,过去一直没有找到好方法,谢谢
发表于 2006-6-19 03:56:17 | 显示全部楼层 来自: 中国江苏苏州
好东西,收下,谢谢啊
发表于 2006-6-19 08:02:27 | 显示全部楼层 来自: 中国山东威海
比打断命令好,但是 消隐部分不能随着尺寸线的移动而 移动.
发表于 2006-6-20 01:31:16 | 显示全部楼层 来自: 中国广西崇左
比打断命令好,以前我就是用打断的,谢谢!又学了一招
发表于 2006-6-22 10:44:42 | 显示全部楼层 来自: 中国浙江杭州
又学了一招不错,打印也没有问题,支持
头像被屏蔽
发表于 2006-6-22 13:16:04 | 显示全部楼层 来自: 中国四川眉山
提示: 作者被禁止或删除 内容自动屏蔽
发表于 2009-6-18 12:45:15 | 显示全部楼层 来自: 中国湖北襄阳
这个功能太好了.大家都是人才啊
发表于 2009-6-18 14:41:57 | 显示全部楼层 来自: 中国河北唐山
又学习了一招,不过我觉得Autodesk公司应该把标注文字下面自动消隐功能加进软件里面
发表于 2009-6-19 11:05:28 | 显示全部楼层 来自: 中国北京
TEXTMASK命令也可以的哈,就是文本屏蔽!
发表于 2009-6-21 07:55:14 | 显示全部楼层 来自: 中国浙江台州
这功能不错,很实用。不知道修改后的线型比例会不会比原来缩小了?有空去试试
发表回复
您需要登录后才可以回帖 登录 | 注册

本版积分规则


Licensed Copyright © 2016-2020 http://www.3dportal.cn/ All Rights Reserved 京 ICP备13008828号

小黑屋|手机版|Archiver|三维网 ( 京ICP备2023026364号-1 )

快速回复 返回顶部 返回列表