QQ登录

只需一步,快速开始

登录 | 注册 | 找回密码

三维网

 找回密码
 注册

QQ登录

只需一步,快速开始

展开

通知     

查看: 1986|回复: 6
收起左侧

[已解决] 向视图其它表达方式

[复制链接]
发表于 2012-3-21 07:57:16 | 显示全部楼层 |阅读模式 来自: 中国广东深圳

马上注册,结识高手,享用更多资源,轻松玩转三维网社区。

您需要 登录 才可以下载或查看,没有帐号?注册

x
本帖最后由 sunping888 于 2012-3-21 10:04 编辑 8 S+ D% l- E! `( {5 c8 i

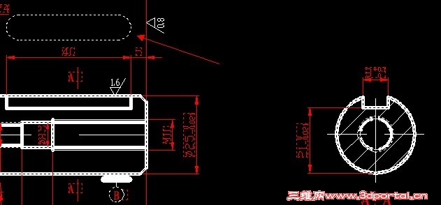
$ q# s9 \& h# `7 A) a8 C9 o 111.jpg : y6 M$ \8 q* B
如图,轴上引用键槽的形状图,省去另外再加向视图,这种方法可取不?1 j& k' K" Z$ O# k/ H: @* v
之前在图纸还是书本上看见过一次这样的画法,记不清楚了。 请各位帮忙。谢谢
发表于 2012-3-21 08:31:11 | 显示全部楼层 来自: 中国上海
当然可以,请参考GB/T 4458.1-2002《机械制图 图样画法 视图》。
shiy.jpg
发表于 2012-3-21 08:33:40 | 显示全部楼层 来自: 中国江苏苏州
可惜在三维软件中这些都是浮云了,哎,标准啊
发表于 2012-3-21 09:05:53 | 显示全部楼层 来自: 中国山西太原
键槽的向视图可以这样画,但要用表示轮廓的粗实线,不要用虚线。如下图是表示法兰孔方位的简化向视图。
表示孔方位的向视图.jpg
发表于 2012-3-21 09:27:39 | 显示全部楼层 来自: 中国上海
谈到标准,我和3楼同感。制图软件大量普及,带来的结果之一是,标准的荒废,各式各样的图纸满天飞,怎么画图的都有,看着累啊!) `4 t1 I$ L. Q7 v) s
制图的最高境界是“千人一图”,也就是图面上看不出个人的痕迹,不论是哪位工程师出的图,放在一起,都差不多。这样才能减少操作人员的误读和歧义。
$ n) u; p- n/ Y1 p有点怀念当年那些大蓝图,有感觉啊!不像如今A3、A4打印出来的图纸,冰冷而生涩。
0 _+ P( z7 ]% M6 r1 s1 C上专业论坛上逛逛,扎堆都在谈的是电脑制图的技术,几乎看不到聊规范、标准之类的内容。
 楼主| 发表于 2012-3-21 10:02:17 | 显示全部楼层 来自: 中国广东深圳
本帖最后由 sunping888 于 2012-3-21 10:53 编辑 5 f; Z. R+ Z. l& ]- g# {
3 G! m& O. a1 Z
谢谢 大家的帮助。 ! _! {+ f2 \% n3 M
一个一个小问题解决,累积起来,就能解决大问题。
! M) `  ?% B- Q- ?4 |1 a3 M
* m' D- R2 B% e% P9 n% I( f6 q* _& k我们公司之前的图纸有大部分没按照比例来出图。因为是机床附件行业。 现在超过A4的图纸,我都按照1:1用两张图纸来分别出图。
 楼主| 发表于 2012-3-21 12:39:57 | 显示全部楼层 来自: 中国广东深圳
本帖最后由 sunping888 于 2012-3-21 13:09 编辑 & D# ?3 b3 p  ~. u( K
当然可以,请参考GB/T 4458.1-2002《机械制图 图样画法 视图》。% H' t. ?- t( p1 K) O3 T
lhf999 发表于 2012-3-21 08:31 http://www.3dportal.cn/discuz/images/common/back.gif
1 s: f5 \3 }" j/ i! X" g. Q

% D, j; {5 F2 s看了其中几个图, 和图5情况相似。
1 v! R) U7 T7 h( v9 [2 x0 e& N
4 T$ q+ g/ d+ x2 k/ ? QQ截图未命名.jpg ; ^1 B7 ?/ T: ~* ~
点划线是画在中间还是两边或者两个圆心处?谢谢
发表回复
您需要登录后才可以回帖 登录 | 注册

本版积分规则


Licensed Copyright © 2016-2020 http://www.3dportal.cn/ All Rights Reserved 京 ICP备13008828号

小黑屋|手机版|Archiver|三维网 ( 京ICP备2023026364号-1 )

快速回复 返回顶部 返回列表