QQ登录

只需一步,快速开始

登录 | 注册 | 找回密码

三维网

 找回密码
 注册

QQ登录

只需一步,快速开始

展开

通知     

全站
7天前
查看: 1979|回复: 3
收起左侧

[求助] 切边模刀口材料求教

[复制链接]
发表于 2011-11-28 11:20:30 | 显示全部楼层 |阅读模式 来自: 中国福建厦门

马上注册,结识高手,享用更多资源,轻松玩转三维网社区。

您需要 登录 才可以下载或查看,没有帐号?注册

x
本帖最后由 505400041 于 2011-11-28 11:53 编辑 4 t1 b" f2 ]# E9 Y& f

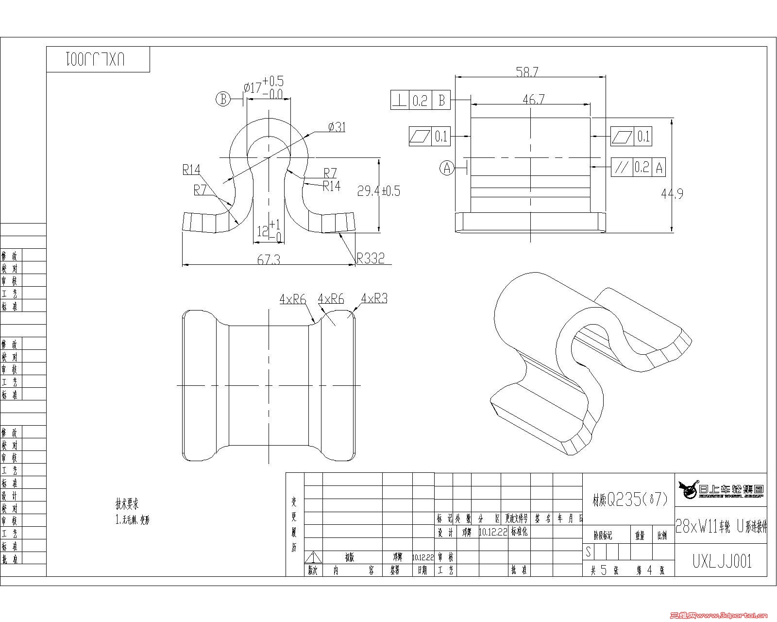
' D5 B7 y" b1 X. T- @& y8 h2 g7mm成型圆状后两边要精修,精修高度差不多有20mm,请教凹模用什么材料好,在线等* P  Z' I) z! ]4 `% E2 y$ l
宽度46.7尺寸是精修的地方
U型件.jpg
发表于 2011-11-29 21:21:41 | 显示全部楼层 来自: 中国安徽芜湖
采用DC53的淬火62~65应该可以。
发表于 2012-1-5 15:41:58 | 显示全部楼层 来自: 中国山东济南
切过卡车轮毂,厚度8MM,行程也是20多,用的是T10A,热处理硬度HRC52~55.试出的最佳效果,不解释。
发表于 2012-3-6 09:41:24 | 显示全部楼层 来自: 中国广东佛山
SKD11   DC53都行。
发表回复
您需要登录后才可以回帖 登录 | 注册

本版积分规则


Licensed Copyright © 2016-2020 http://www.3dportal.cn/ All Rights Reserved 京 ICP备13008828号

小黑屋|手机版|Archiver|三维网 ( 京ICP备2023026364号-1 )

快速回复 返回顶部 返回列表