QQ登录

只需一步,快速开始

登录 | 注册 | 找回密码

三维网

 找回密码
 注册

QQ登录

只需一步,快速开始

展开

通知     

查看: 6968|回复: 29
收起左侧

[分享] 如何利用SolidWorks出多规格产品工程图

[复制链接]
发表于 2011-11-18 15:22:24 | 显示全部楼层 |阅读模式 来自: 中国广东深圳

马上注册,结识高手,享用更多资源,轻松玩转三维网社区。

您需要 登录 才可以下载或查看,没有帐号?注册

x
ICT Engineer——Abel Chen

2 L* c3 q8 E; V5 b' u       我们知道SolidWorks出工程图非常的方便快捷,每个视图都具有关联性,方便修改。但对于一些特殊的零件,如多规格产品,我们不可能每一个产品都出一张工程图,经验丰富的工程师都知道,出其中一个产品的工程图,在这张工程图中,添加一个规格表来说明此产品的其它型号的尺寸大小。那如何利用SolidWorks的工程图功能来实现这样的工程图呢? ( v/ N0 c, Q, y: i5 ]
       首先,多规格产品,在SolidWorks中叫做配置零件,所以要做含有规格表格的工程图,必须在SolidWorks中做好配置零件。在这里就不详细解说如何建立配置零件。(如图一)
+ _( r% J1 j% ^# J; h 67-01.jpg
, i- Q* V2 c. Z! _* U图一# [" S% K8 w! X2 M% P
      ' n' C" _& p( y
       接下来,我们就利用这个零件建立工程图,把尺寸,视图等都摆放到合理位置。建立工程图的细节也不在这里详说,相信大家都已经很熟悉。(如图二)
; G4 B' O! ]+ n% i, s 67-02.jpg ' a7 m0 v( Z4 n) F2 m4 b; }+ X, h
图二- a, J$ _8 r. ?" x) W4 y
                                  $ A4 o2 e4 t; u- q$ q6 V* V- I
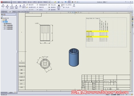
       最重要的,我们如何添加规格尺寸表呢?具体操作如下:
9 s# o+ F0 n/ X       1、 选中其中一个视图,点击“插入”,“表格“,“设计表”,那么SolisWorks就会自动插入此零件中的系列零件设计表,此表格就是表达了零件每个配置变更的尺寸与特征等属性。(如图三)
- p" Z4 N  E! x2 U% R; Y 67-03.jpg
" d4 Q" l+ D% X- `# z* ~% N% Q图三# ~2 T4 \* k# s' J/ j
. s" J: u5 @; x$ o( [
       2、接下来,我们要对此表格进行修改成符合公司标准。首先是表格中尺寸如何对应到视图中的对象?如高30mm,我们在视图中选择高30mm尺寸,在左边的尺寸属性栏中,主要值,点击“覆盖数值”,在下面的空白方框中输入“A”(如图四),即用A来代表高,表格中也用A来代表高这一列。接下来返回表格,因为它是Excel表格,所以可以在这表格上做Excel相关的操作,如添加行,隐藏行,隐藏列等,(如图五)进行添加与隐藏。3 s8 ~" h6 E5 k$ k! x% b, X  i
67-04.jpg
% H7 r# D* A# O- c图四 % {; r% ^1 H) o8 W; U2 g
! v: n% ]( w4 A1 X& D  N
67-05.jpg                   
3 v2 z4 ?5 }$ N. p8 ?! P- h图五
  [: X9 [+ ~# C0 I& C+ I5 I5 _7 T0 r2 {* h/ F
       此多规格产品工程图也就基本完成了。综上所述,在SolidWorks中也可以很快捷得完成此特殊的工程图。而且在SolidWorks 2012的工程图功能被重点优化,成为一个亮点。在http://www.solidworks.com.cn/launch/solidworks-2012-overview.htm?var=1-4BB-0这里,大家除了可以详细了解到“工程图”在SolidWorks 2012的表现,还能看到SolidWorks 2012新功能给大家带来的惊喜,改变。
发表于 2011-11-18 17:30:47 | 显示全部楼层 来自: 中国浙江温州
感觉这么大的图框有点浪费1 r5 d2 l* J6 B% e+ g" l
呵呵
 楼主| 发表于 2011-11-24 14:47:09 | 显示全部楼层 来自: 中国广东深圳
同时,http://dssolidworks.6connex.com/ ... mp;mcc=varID=100082 会定期更新内容,可以让你不出门,在家里、在公司就能体验到SolidWorks 2012的新功能,新技术。
发表于 2012-3-29 15:10:24 | 显示全部楼层 来自: 中国河北保定
谢谢楼主分享,我会好好运用
发表于 2012-3-29 15:33:54 | 显示全部楼层 来自: 中国上海
学习了。试下看怎么样
发表于 2012-3-29 20:40:56 | 显示全部楼层 来自: 中国宁夏银川
又学了一招,谢谢
发表于 2012-3-29 20:58:43 | 显示全部楼层 来自: 中国吉林辽源
谢谢楼主分享
发表于 2012-3-29 21:48:53 | 显示全部楼层 来自: 中国广东广州
学习了。。。如果配置不多,还可以COPY图纸的方式也可
发表于 2012-3-31 10:09:36 | 显示全部楼层 来自: 中国广东深圳
这是工程图进阶必备,好像早就有人介绍过。。
发表于 2012-4-23 22:59:35 | 显示全部楼层 来自: 中国广东广州
看上去不错,学习学习~~
发表于 2012-4-23 23:02:30 | 显示全部楼层 来自: 中国上海
设计,需要的是实用,不是噱头
发表于 2012-4-24 10:31:53 | 显示全部楼层 来自: 中国北京
适合自己的就行,管它什么功能,我有的是时间,一张一张的画也可以的
发表于 2012-4-30 12:03:03 | 显示全部楼层 来自: 中国上海
也想过这个问题,看到此贴学习到。谢谢楼主!
发表于 2012-4-30 16:20:47 | 显示全部楼层 来自: 中国江苏泰州
楼主,如何利用SolidWorks出多规格装配产品的工程图?你只讲了大家都会的多规格零件产品的工程图
发表于 2012-5-13 18:31:34 | 显示全部楼层 来自: 中国江苏无锡
好东西,学习了,收藏是必须的。感激不尽
发表于 2012-5-13 19:47:10 | 显示全部楼层 来自: 中国重庆
这个非常的使用,有碰到在一个装配体里面,只需画一个零件,但又能自动生产不同的规格吗?
发表于 2012-5-14 08:16:11 | 显示全部楼层 来自: 中国四川凉山彝族自治州
平时使用中还真没注意到有此功能,学习了。谢谢楼主!
发表于 2012-5-14 08:28:05 | 显示全部楼层 来自: 中国浙江金华
学习了。谢谢楼主!
发表于 2012-5-14 13:15:25 | 显示全部楼层 来自: 中国江西南昌
怎么我在第一步里的插入表格里不能选择设计表啊,他是暗色的,怎么回事?????
发表于 2012-5-15 13:13:55 | 显示全部楼层 来自: 中国湖南长沙
好方法!谢谢楼主
发表于 2012-5-15 13:24:34 | 显示全部楼层 来自: 中国江苏苏州
方法啊,谢了!
发表于 2012-5-15 17:37:03 | 显示全部楼层 来自: 中国黑龙江大庆
学习了,试试吧
发表于 2012-6-3 07:12:38 | 显示全部楼层 来自: 中国河北石家庄
楼主的介绍很好,谢谢楼主了
发表于 2012-6-3 18:37:23 | 显示全部楼层 来自: 中国江苏常州
楼主,又学了一招,谢谢了
发表于 2012-6-4 12:26:52 | 显示全部楼层 来自: 中国山东淄博
不错不错,赞一个。
发表回复
您需要登录后才可以回帖 登录 | 注册

本版积分规则


Licensed Copyright © 2016-2020 http://www.3dportal.cn/ All Rights Reserved 京 ICP备13008828号

小黑屋|手机版|Archiver|三维网 ( 京ICP备2023026364号-1 )

快速回复 返回顶部 返回列表