QQ登录

只需一步,快速开始

登录 | 注册 | 找回密码

三维网

 找回密码
 注册

QQ登录

只需一步,快速开始

展开

通知     

全站
6天前
查看: 2591|回复: 9
收起左侧

[讨论] SolidWorks如何画压力容器的三维补强圈?

[复制链接]
发表于 2011-6-10 10:54:55 | 显示全部楼层 |阅读模式 来自: 中国甘肃兰州

马上注册,结识高手,享用更多资源,轻松玩转三维网社区。

您需要 登录 才可以下载或查看,没有帐号?注册

x
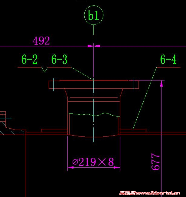
件号6-4是补强圈。' y  u) {( c+ Y7 j( a: x  ~
  a. N# r0 i5 v6 w3 s+ y* d7 X
3.JPG 2.JPG ' I  O( A/ x; |! ]! \0 s* ~0 \
1 G. F( M7 \8 p

5 y5 m( k3 H$ w1 _* j3 E: \, r1 T' L用AUTOCAD画图示效果相当麻烦。
! Y7 R! F1 o8 m; {8 b' `
* T& A8 L7 q+ s  c7 q* \
) _5 A. D! |6 ^, j/ _3 q1 n 1.JPG
) ^* `  o9 O! J/ c6 r/ F5 N0 k3 N: r3 l! M
7 O4 i- x$ b8 K1 M/ j
CAD画图文件" k% R" v9 z4 g

8 F5 b/ f' m0 P! q1 S! w# B4 h, _8 T) O/ X4 ?
桌面.rar (31.38 KB, 下载次数: 7)
发表于 2011-6-10 12:02:47 | 显示全部楼层 来自: 日本
我用分割線然後剪裁實體的方法能實現這樣的形狀。。。& J3 i0 |, Q9 N" s' Q& l
スクリーンショット(2011-06-10 13.01.49).png
+ P1 c8 W6 H  d1 k3 n6 T# B
" Q& D8 @( m0 ~( U/ ~另外,感覺上,變型或者壓凹可能有更簡單的做法。。。
发表于 2011-6-10 12:59:18 | 显示全部楼层 来自: 中国辽宁抚顺
可以用钣金; p' z1 G& N2 g/ X) A' l. b
还有很多方法。。。
 楼主| 发表于 2011-6-10 13:22:16 | 显示全部楼层 来自: 中国甘肃兰州
我用分割線然後剪裁實體的方法能實現這樣的形狀。。。
  F1 n; g' o! u+ q2 F- ?+ t1903152
6 m0 ^) l1 `( r- M" m  z+ \0 g* r2 J$ ?1 Z2 y
另外,感覺上,變型或者壓凹可能有更簡單的做法。。。
* u" N5 L( n. tsihouko 发表于 2011-6-10 12:02 http://www.3dportal.cn/discuz/images/common/back.gif
4 B9 n7 d4 _* [: S; v4 D7 |

7 d3 r. `& P, v; c) v9 H谢谢回复。能否上传SW2006版的示例文件。便于掌握相关知识点。
发表于 2011-6-10 13:30:03 | 显示全部楼层 来自: 日本
4# ning84 ' i) Y# T- s0 ]
抱歉,在用2011版本。。。2006的沒有。。。><;
 楼主| 发表于 2011-6-10 13:52:19 | 显示全部楼层 来自: 中国甘肃兰州
本帖最后由 ning84 于 2011-6-10 13:55 编辑
$ F% q' V9 m2 n
4# ning84 2 d+ O0 a: G- m+ m( J! ^8 X
抱歉,在用2011版本。。。2006的沒有。。。>
; l6 _" Z: z0 z# D. l! qsihouko 发表于 2011-6-10 13:30 http://www.3dportal.cn/discuz/images/common/back.gif
+ @9 B) B, W" J& p0 j! H, g! i  w
. m) W/ K. i9 o% i; m4 d0 z
谢谢,能提供一下sw2011版的下载破解版的地址吗?: i4 `* }; ?3 ]6 R

: V; f" I0 \& r2 J这种配置的计算机硬件能转起来吗?% W0 I1 ]4 c, g0 o$ `1 z6 t7 t" }

$ B( Y5 x6 M$ M$ A 1.JPG
发表于 2011-6-10 14:19:10 | 显示全部楼层 来自: 中国浙江金华
件号6-4是补强圈。/ J7 M. ?) f0 H4 J4 k' V/ ]

* D) W3 q/ u* ]4 z( Z# p; |/ @! ^19031271903128, o- c9 F+ W6 O# c4 v4 y* O
! Q  ?& c; z4 f6 [% }

) R7 _- z, r5 n用AUTOCAD画图示效果相当麻烦。
  C$ A- `% `/ r; a5 t# Q& x  L- D; W+ W* i$ D0 Q. P6 C; x: u1 u

, _) V+ P  P& [" u5 p0 g6 Q) h1903129! \  M; J) S( c: S6 }0 C, O
$ ]$ o- |( ]7 e0 e# j
0 `* s5 ]/ A* \, ?" {8 e( x
CAD画图文件
- z8 Y7 l3 ~% d# q$ j
" [3 `9 M# k: Q) C% M( g' V, @" `- r6 l# H: r2 V
1903130( Y+ W1 U2 P% n1 u! ]$ O& O- e! p
请问:在SolidWorks如何实现,谢谢。' ?  d5 j6 q0 B* j
ning84 发表于 2011-6-10 10:54 http://www.3dportal.cn/discuz/images/common/back.gif

, Q  X, H% v, i8 h一拉一切,很简单:' E2 d5 W2 n" G# H* N: c5 O
46.jpg
发表于 2011-6-10 14:20:33 | 显示全部楼层 来自: 中国浙江金华
谢谢,能提供一下sw2011版的下载破解版的地址吗?
  S( e, c' H! f/ [1 c
; Z# D( Y5 R3 T. n" {7 C/ V- x& U这种配置的计算机硬件能转起来吗?2 X# N% A7 H  ?0 q( x
6 k5 \5 O- R# Y
1903218
$ g/ C+ W; Z* l4 nning84 发表于 2011-6-10 13:52 http://www.3dportal.cn/discuz/images/common/back.gif

% _; v/ H: P+ V( o( H集显应该不行,很卡,稍大点的装配体根本转不起来!
发表于 2011-6-10 14:39:58 | 显示全部楼层 来自: 中国浙江嘉兴
网上找找就好了
发表于 2011-6-10 16:14:23 | 显示全部楼层 来自: 日本
8# ffda
5 L+ G  c) K0 j, N  H6 \如果是公司用,勸你用會2006,要不然所有的文件全打不開~
发表回复
您需要登录后才可以回帖 登录 | 注册

本版积分规则


Licensed Copyright © 2016-2020 http://www.3dportal.cn/ All Rights Reserved 京 ICP备13008828号

小黑屋|手机版|Archiver|三维网 ( 京ICP备2023026364号-1 )

快速回复 返回顶部 返回列表