QQ登录

只需一步,快速开始

登录 | 注册 | 找回密码

三维网

 找回密码
 注册

QQ登录

只需一步,快速开始

展开

通知     

查看: 2310|回复: 6
收起左侧

[讨论] 关于齿轮跳动的测量?

[复制链接]
发表于 2011-5-19 11:04:19 | 显示全部楼层 |阅读模式 来自: 中国北京

马上注册,结识高手,享用更多资源,轻松玩转三维网社区。

您需要 登录 才可以下载或查看,没有帐号?注册

x
一般齿轮是测量齿顶圆的跳动还是测量分度圆的跳动? 还是小齿轮测齿顶大齿轮测分度圆? 分度圆是怎么测量的啊?  希望大家讨论。
发表于 2011-5-19 12:03:01 | 显示全部楼层 来自: 中国上海
1.严格的说,是测量节圆的跳动。: c8 y( u# b3 }
2.测量齿顶圆的跳动,是一种基准转换,必须对齿顶圆提出工艺要求。
发表于 2011-5-19 14:33:33 | 显示全部楼层 来自: 中国江苏常州
齿轮参数测量肯定是测量节圆的跳动(Fr),用齿轮径跳仪测量,当齿顶圆作为测量基准时应该测量。
 楼主| 发表于 2011-5-23 09:20:59 | 显示全部楼层 来自: 中国北京
谢谢二位的回复。
发表于 2011-5-24 08:51:09 | 显示全部楼层 来自: 中国山西太原
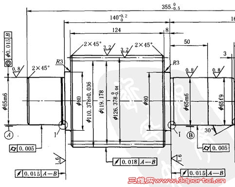
一般齿轮是测量齿顶圆的跳动,分度圆是看不到的理论上存在的圆,只能通过齿顶圆间接测量,在圆柱齿轮的工作图中,标注的就是齿顶圆的径向跳动,只有这里的跳动才可直接测量。
圆柱齿轮的标注.jpg
发表于 2011-6-8 14:19:45 | 显示全部楼层 来自: 中国浙江杭州
测量齿轮的节圆可以用圆球或量棒放到齿槽里打表测量跳 动
发表于 2011-6-8 16:14:29 | 显示全部楼层 来自: 中国上海
学习了,6#的要求有些合理。
发表回复
您需要登录后才可以回帖 登录 | 注册

本版积分规则


Licensed Copyright © 2016-2020 http://www.3dportal.cn/ All Rights Reserved 京 ICP备13008828号

小黑屋|手机版|Archiver|三维网 ( 京ICP备2023026364号-1 )

快速回复 返回顶部 返回列表