QQ登录

只需一步,快速开始

登录 | 注册 | 找回密码

三维网

 找回密码
 注册

QQ登录

只需一步,快速开始

展开

通知     

查看: 3473|回复: 11
收起左侧

[求助] 如图,材料铝合金,如何加工直径3的小孔??

[复制链接]
发表于 2011-4-27 08:34:43 | 显示全部楼层 |阅读模式 来自: 中国广西柳州

马上注册,结识高手,享用更多资源,轻松玩转三维网社区。

您需要 登录 才可以下载或查看,没有帐号?注册

x
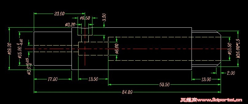
如图,材料铝合金,如何加工直径3的小孔??精度太高!
7971151A.jpg
7971151B.jpg
7971151C.jpg
发表于 2011-7-1 23:36:34 | 显示全部楼层 来自: 中国江苏南京
直接做定位钻孔夹具不行吗?
发表于 2011-7-3 09:40:01 | 显示全部楼层 来自: 中国山西晋中
没有公差要求,划线后或制一工装用φ3钻头钻孔就可以了。第一个图中下边的孔若普通钻头不够长,可换用加长麻花钻钻孔。
发表于 2011-7-3 13:11:58 | 显示全部楼层 来自: 中国广东肇庆
关键是:直径3+0。015的孔,要用新的车床,打中心孔,新的钻头,叫个厉害的师傅,把钻头的刃在砂抡机上轻碰,单边去掉1个C,方能达要求,否侧难做+0。015。还要事前做两个检规,外圆直径为3+0。02和外圆直径为3+0。00,钻后要用其检验孔的公差,用力塞进去,一个能进一个不能进孔为OK。
发表于 2011-7-5 22:02:16 | 显示全部楼层 来自: 中国上海
先钻后铰~~
发表于 2011-7-5 22:31:52 | 显示全部楼层 来自: 中国北京
先找一个小一些的钻铰刀试验一下吧!如果不行,那就只能找个钻头打孔,然后用铰刀来做了。于我开始考虑了先钻在用铣刀休整一下孔的尺寸。没有光洁度和圆柱度的要求这歌孔好干很多了

评分

参与人数 1三维币 +2 收起 理由
渔樵 + 2 技术讨论

查看全部评分

发表于 2011-10-20 17:02:22 | 显示全部楼层 来自: 中国河北沧州
支持五楼   先钻后铰
发表于 2011-10-26 15:40:17 | 显示全部楼层 来自: 中国重庆
对,采用深孔钻加工,在绞削
发表于 2011-10-27 08:49:08 | 显示全部楼层 来自: 中国湖北十堰
可考虑激光打孔
头像被屏蔽
发表于 2011-10-29 14:27:46 | 显示全部楼层 来自: 中国福建莆田
提示: 作者被禁止或删除 内容自动屏蔽
发表于 2011-11-22 09:15:38 | 显示全部楼层 来自: 中国辽宁大连
慢走丝 多走几遍 精度可以保证 幸好没有光洁度要求。
发表于 2014-10-20 19:05:28 | 显示全部楼层 来自: 中国浙江宁波
先钻(尺寸不稳定),后铰再用钢球或挤压杆加工,不知道楼主用什么方法
发表回复
您需要登录后才可以回帖 登录 | 注册

本版积分规则


Licensed Copyright © 2016-2020 http://www.3dportal.cn/ All Rights Reserved 京 ICP备13008828号

小黑屋|手机版|Archiver|三维网 ( 京ICP备2023026364号-1 )

快速回复 返回顶部 返回列表