QQ登录

只需一步,快速开始

登录 | 注册 | 找回密码

三维网

 找回密码
 注册

QQ登录

只需一步,快速开始

展开

通知     

查看: 2556|回复: 5
收起左侧

[已解决] 悬赏500swb求混凝土搅拌车托轮总成图纸

[复制链接]
发表于 2011-4-3 11:49:47 | 显示全部楼层 |阅读模式 来自: 中国广西

马上注册,结识高手,享用更多资源,轻松玩转三维网社区。

您需要 登录 才可以下载或查看,没有帐号?注册

x
本帖最后由 2005llnn 于 2011-4-3 12:18 编辑
& R" J( i1 k3 }( y" Z% c8 `9 F& z& e9 Z) ^8 Z9 C) z! n, ?
我需要混凝土搅拌车托轮总成图纸,最好包括零件图,根据提供的资料完整程度,最高赏500swb。
( J" g4 s. @, {如果图纸不够完整,也可赏适当swb。& f8 r' q- U+ I
请有资料的会员发到我邮箱shshsh2007@163.com
. X! t& [: p0 J/ C* I& P我会通过转帐swb给你的。
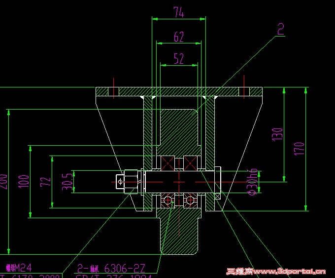
+ q! _" p# W* O 混凝土搅拌车托轮总成.jpg
( n3 k) K' |* v5 \* P8 F* b下面这种小车轮图纸我已经有了。
小车轮图纸.jpg
发表于 2011-6-16 20:52:02 | 显示全部楼层 来自: 中国江苏徐州
你要搅拌车拖轮图纸干什么用?我这有 中国重汽的
发表于 2012-3-18 17:15:41 | 显示全部楼层 来自: 中国陕西西安
我这里有,星马加强型
发表于 2013-8-2 10:19:45 | 显示全部楼层 来自: 中国广东广州
呵呵,现在看来重汽的图纸到处都有哦,呵呵,我不是重汽的都有好多,不过一般人不给,内部交流用
发表于 2013-8-3 21:19:04 | 显示全部楼层 来自: 中国广东广州
呵呵,楼主,我到是有,这东西好像很多公司都是一样的哦
发表于 2013-8-3 21:19:36 | 显示全部楼层 来自: 中国广东广州
而且是三维的很齐全
发表回复
您需要登录后才可以回帖 登录 | 注册

本版积分规则


Licensed Copyright © 2016-2020 http://www.3dportal.cn/ All Rights Reserved 京 ICP备13008828号

小黑屋|手机版|Archiver|三维网 ( 京ICP备2023026364号-1 )

快速回复 返回顶部 返回列表