QQ登录

只需一步,快速开始

登录 | 注册 | 找回密码

三维网

 找回密码
 注册

QQ登录

只需一步,快速开始

展开

通知     

全站
7天前
查看: 4173|回复: 28
收起左侧

[已解决] 请大家帮忙画下这张三维图

[复制链接]
发表于 2011-3-26 22:05:23 | 显示全部楼层 |阅读模式 来自: 中国浙江台州

马上注册,结识高手,享用更多资源,轻松玩转三维网社区。

您需要 登录 才可以下载或查看,没有帐号?注册

x
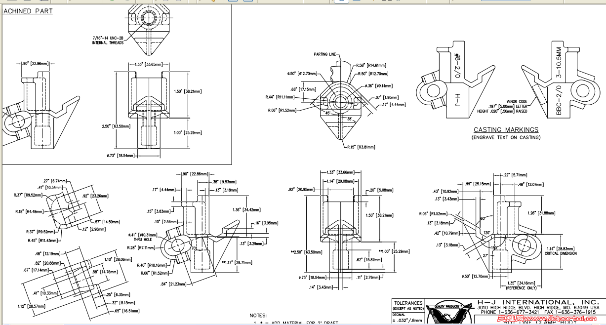
请大家帮忙画下这张三维图( @) r4 C, o( d$ d# s0 U7 ]
画了两天还没有画出来!由于是新手!在此先谢谢了!
搜狗截图_2011-03-26_22-03-40.png

TB-2233-00.pdf

128.89 KB, 下载次数: 636

发表于 2011-3-27 19:51:08 | 显示全部楼层 来自: 中国江西九江
不是你不会画吧 !而是你还没看懂这2D图吧!
发表于 2011-3-27 21:06:35 | 显示全部楼层 来自: 中国江苏徐州
楼主应借这个好好练练,以后很有用的
发表于 2011-3-28 09:09:45 | 显示全部楼层 来自: 中国北京
楼主把这个图全发上来,这个截图缺东西,(技术要求和标题栏)
发表于 2011-3-28 09:48:53 | 显示全部楼层 来自: 中国广东广州
有无奖励呀!?( k0 v6 c% ~3 t, G
全是全了,不过画起来步骤多电而已!
发表于 2011-3-28 21:20:03 | 显示全部楼层 来自: 中国湖北鄂州
还没有人来交作业?我已经搞得差不多了。工作之余玩玩,希望明天搞定。
发表于 2011-3-29 09:54:47 | 显示全部楼层 来自: 中国广东惠州
这个图出得有点乱,加工的人看得很辛苦
发表于 2011-3-29 10:26:56 | 显示全部楼层 来自: 中国江苏无锡
我下来看看,但愿我能画出来
发表于 2011-3-29 11:53:32 | 显示全部楼层 来自: 日本
有时间的人,是可以画的
发表于 2011-3-29 11:54:42 | 显示全部楼层 来自: 日本
能传上CAD图纸原件,可以节省很多时间的
发表于 2011-3-29 12:33:57 | 显示全部楼层 来自: 中国四川达州
有个地方有问题,不知道坛友怎么看。如图
123.jpg
 楼主| 发表于 2011-3-29 20:35:53 | 显示全部楼层 来自: 中国浙江台州
真诚的感谢各位好心人支持和解答!
6 i. f# z7 s8 [: Q回楼上!有问题的地方好像是缺尺寸!不过那里是封闭的实体部分;现在关键是整体造型我做不出来!, a; a* r$ @! b, R
各位好心的朋友;有做好的请上传源文件;在此先谢过了!
7 {+ O: b7 h+ @: E: K  Y我的QQ345660093@qq.com
 楼主| 发表于 2011-3-29 20:48:39 | 显示全部楼层 来自: 中国浙江台州
继续期待中……
发表于 2011-3-29 21:10:07 | 显示全部楼层 来自: 中国湖北鄂州
不缺尺寸,是那一段实线不对。
 楼主| 发表于 2011-3-30 07:28:27 | 显示全部楼层 来自: 中国浙江台州
是的!不应该是实线表示;在造型时可以做成实体!1 t! n% g" l0 b0 u* ?
期望楼主的源文件上传!谢谢!
发表于 2011-3-30 18:11:27 | 显示全部楼层 来自: 中国河北石家庄
本帖最后由 pproee88 于 2011-4-1 10:18 编辑
* [% o. v* `- z/ _: y, t* ?- f4 E* Y/ Y- A3 p6 @( l
11.jpg
2 B$ \  X+ ]! m- ]. p0 v1 E& ?& V2 u' v4 o0 u, W7 C
不好弄,多了一块弄不下去
! R( N# f& d% I/ ]问题比较多只是个模样
  K9 _! Y1 [/ K 零件11.rar (1.21 MB, 下载次数: 145)

评分

参与人数 1三维币 +5 收起 理由
qhdhcs + 5 应助

查看全部评分

 楼主| 发表于 2011-3-31 09:56:54 | 显示全部楼层 来自: 中国浙江台州
回复pproee88朋友;请上传你的源文件;学习你的建模思路!谢谢!
 楼主| 发表于 2011-3-31 14:38:43 | 显示全部楼层 来自: 中国浙江台州
回复pproee88朋友
# x0 b4 Y. r+ n, v) E0 k/ r: v你的源文件是什么版本啊?我的打不开啊!我现在装的是2007的;请转换成IGS可以吗?谢谢!
发表于 2011-3-31 16:52:16 | 显示全部楼层 来自: 中国河北廊坊
有时间的人,是可以画的
 楼主| 发表于 2011-4-2 08:03:33 | 显示全部楼层 来自: 中国浙江台州
感谢pproee88朋友的热心帮助9 F$ [  I& F& b7 }
谢谢!
发表于 2011-4-4 16:53:31 | 显示全部楼层 来自: 中国山东潍坊
有高手啊,.DDD
发表于 2011-4-4 21:34:14 | 显示全部楼层 来自: 中国浙江杭州
看来还是机械制图功底不够。只要图看得懂,就可以画得出来。
发表于 2011-4-4 21:50:28 | 显示全部楼层 来自: 中国广东广州
看的眼都花
发表于 2011-4-5 00:43:41 | 显示全部楼层 来自: 中国广东东莞
热心的人还是很多的
发表于 2011-4-8 15:29:49 | 显示全部楼层 来自: 中国江苏苏州
看不明白图纸啊!惭愧啊!面对以前教过制图的制图老师表示惭愧!唉 识图能力还是需要加强锻炼啊
发表回复
您需要登录后才可以回帖 登录 | 注册

本版积分规则


Licensed Copyright © 2016-2020 http://www.3dportal.cn/ All Rights Reserved 京 ICP备13008828号

小黑屋|手机版|Archiver|三维网 ( 京ICP备2023026364号-1 )

快速回复 返回顶部 返回列表