QQ登录

只需一步,快速开始

登录 | 注册 | 找回密码

三维网

 找回密码
 注册

QQ登录

只需一步,快速开始

展开

通知     

查看: 1275|回复: 1
收起左侧

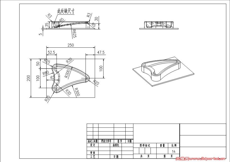
[求助] 请教高手这个图怎么画三维,急

[复制链接]
发表于 2011-3-11 12:45:31 | 显示全部楼层 |阅读模式 来自: 中国浙江湖州

马上注册,结识高手,享用更多资源,轻松玩转三维网社区。

您需要 登录 才可以下载或查看,没有帐号?注册

x
请问这个图CAD三维造型怎么画,急急
1.png
发表于 2011-3-11 23:01:54 | 显示全部楼层 来自: 中国江西鹰潭
楼主的图好像缺少尺寸,我估计画了下,看对不对。
* l# f/ D/ n7 c2 e) x由于图片放大可能不清楚,就又上传了个PDF格式的。CAD2008作图。
# c7 S$ D6 z2 A$ u. j3 H1 X: E- S) \  |0 e6 }" O2 }4 H
未命名.PNG , J6 O" b; d2 ^: Q( ]. N3 G1 n% @

7 c9 y( z* \# T( K* { Drawing1-Model.pdf (30.78 KB, 下载次数: 5)

评分

参与人数 1三维币 +5 收起 理由
★新手★ + 5 应助

查看全部评分

发表回复
您需要登录后才可以回帖 登录 | 注册

本版积分规则


Licensed Copyright © 2016-2020 http://www.3dportal.cn/ All Rights Reserved 京 ICP备13008828号

小黑屋|手机版|Archiver|三维网 ( 京ICP备2023026364号-1 )

快速回复 返回顶部 返回列表