QQ登录

只需一步,快速开始

登录 | 注册 | 找回密码

三维网

 找回密码
 注册

QQ登录

只需一步,快速开始

展开

通知     

全站
7天前
查看: 2406|回复: 7
收起左侧

[已解决] 如何计算螺纹段长度?

 关闭 [复制链接]
发表于 2011-3-9 14:36:50 | 显示全部楼层 |阅读模式 来自: 中国江苏无锡

马上注册,结识高手,享用更多资源,轻松玩转三维网社区。

您需要 登录 才可以下载或查看,没有帐号?注册

x
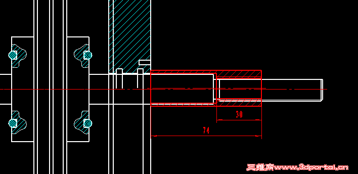
QQ截图未命名.png
. B9 V: F4 o' ^+ R如图,红色的是铜螺母,前面一段是长的沉孔,后面一段是螺纹。用于锁住活塞,不让其在汽缸中向前运动。通过气源压力和缸径可以计算其输出力,螺纹为M10*1的,那么螺纹长度该怎么校核呢?
发表于 2011-3-9 14:42:17 | 显示全部楼层 来自: 中国广东广州
通常旋和10个螺牙即可,再多也没用处,反倒增加制造的难度
$ |! U1 t2 X/ ~  r. j$ _' Z
, t; H  M9 R2 b. |这个是限位螺母,需要用双螺母的结构来锁固
 楼主| 发表于 2011-3-9 14:59:15 | 显示全部楼层 来自: 中国江苏无锡
本帖最后由 朱文兵 于 2011-3-9 15:01 编辑 / A/ F6 m  i# ~1 X$ r
5 z' O# d) G) c" i
2# liweisky : B9 q( v( z6 v2 f! s; \# M/ N
我想有理论计算依据,汽缸输出力大概200N.6 j9 e; R  i( @0 A$ P* w
平时都是以直径两倍来加工的。至于锁定问题,我们是用M5的内六角紧定螺钉来固定的,应该没有问题。
发表于 2011-3-9 18:56:59 | 显示全部楼层 来自: 中国江苏苏州
给你一份资料供参考

螺栓的预紧力矩计算.pdf

99.99 KB, 下载次数: 7

发表于 2011-3-9 19:53:32 | 显示全部楼层 来自: LAN
应该是讲内螺纹的有效长度,参考JB/ZQ 4720-2006,倾向于12~15mm
发表于 2011-3-9 21:22:40 | 显示全部楼层 来自: 中国江苏南京
螺纹段的长度你可以选择比M10的螺母的厚度稍微长一点
发表于 2011-3-10 09:59:11 | 显示全部楼层 来自: 中国山西太原
对于钢和青铜材料的螺孔,螺纹长度通孔是螺纹公称直径的1.2倍,盲孔螺纹长度等于螺纹公称直径。
8 h6 D5 J# ^  R. E) U5 |* ]( W若进行强度校核,先根据气压和活塞净面积算活塞的拉力,螺杆不需算螺纹受的剪切应力,只需计算螺杆的拉伸应力,因为螺纹的受剪面积远远大于螺杆的受拉面积。对于螺母,可校核螺纹的受弯和受剪应力,计算受力面积时,螺纹长度取等于螺纹公称直径。

评分

参与人数 1三维币 +3 收起 理由
虎强 + 3 技术讨论

查看全部评分

 楼主| 发表于 2011-4-15 15:42:45 | 显示全部楼层 来自: 中国江苏无锡
7# gaoyns
5 N& b) W  Q$ h: l1 r1 o哦,我们用的是黄铜,可能是H65还是62的
发表回复
您需要登录后才可以回帖 登录 | 注册

本版积分规则


Licensed Copyright © 2016-2020 http://www.3dportal.cn/ All Rights Reserved 京 ICP备13008828号

小黑屋|手机版|Archiver|三维网 ( 京ICP备2023026364号-1 )

快速回复 返回顶部 返回列表