QQ登录

只需一步,快速开始

登录 | 注册 | 找回密码

三维网

 找回密码
 注册

QQ登录

只需一步,快速开始

展开

通知     

全站
7天前
查看: 1990|回复: 5
收起左侧

[已解决] 请教一个偏心标注问题

[复制链接]
发表于 2011-3-5 17:53:06 | 显示全部楼层 |阅读模式 来自: 中国山东潍坊

马上注册,结识高手,享用更多资源,轻松玩转三维网社区。

您需要 登录 才可以下载或查看,没有帐号?注册

x
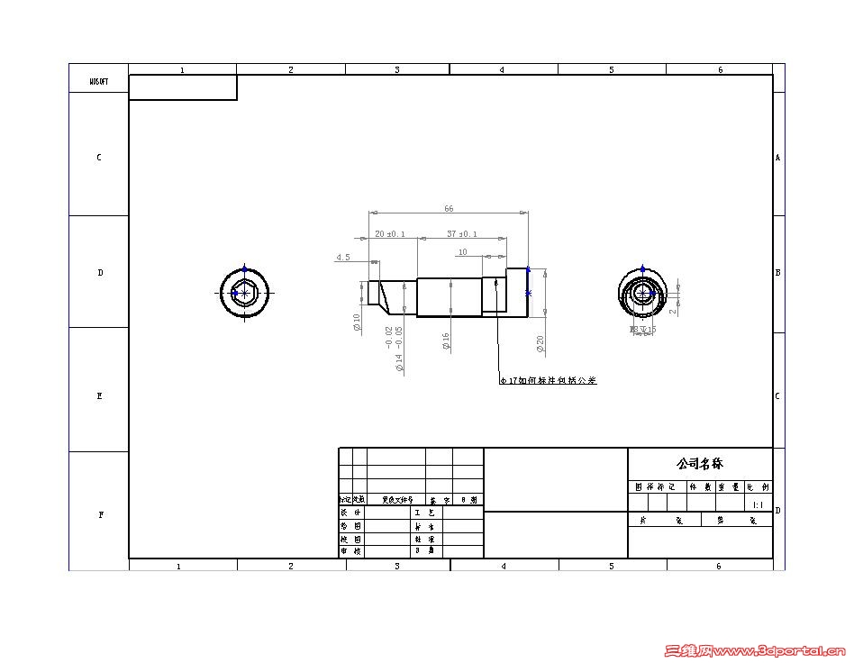
无论如何也扑捉不到直径的尺寸,请教高手这样的问题如何解决,多谢!强行输入之后,公差无法输入,实在是没有招了……
偏心轴.jpg

偏心轴.rar

214.08 KB, 下载次数: 18

发表于 2011-3-5 18:07:16 | 显示全部楼层 来自: 中国浙江温州
看图,方法不是很好!但能达到你的要求,也可以同时标注偏心离
无标题.jpg

评分

参与人数 1三维币 +3 收起 理由
wlkr + 3 技术讨论

查看全部评分

 楼主| 发表于 2011-3-5 18:50:21 | 显示全部楼层 来自: 中国山东潍坊
谢谢——这个法也不错……
发表于 2011-3-7 14:43:54 | 显示全部楼层 来自: 中国辽宁沈阳
先在φ17的圆周上画出现两条尺寸界线,然后再按常规的标注就可以了.
φ17尺寸标注.jpg

评分

参与人数 1三维币 +3 收起 理由
wlkr + 3 技术讨论

查看全部评分

发表于 2011-3-8 11:13:41 | 显示全部楼层 来自: 中国广东深圳
楼主,这里有个小技巧,采用覆写的方式就能达到目的:即线性标注后,先把公差做好,添加直径符号,取消括号,再覆写主尺寸。这样公差就得以保留了。如图: P8 k$ c+ Q  W5 z9 u, @1 M! [
未命名.jpg

评分

参与人数 1三维币 +3 收起 理由
wlkr + 3 技术讨论

查看全部评分

 楼主| 发表于 2011-3-10 17:54:54 | 显示全部楼层 来自: 中国山东潍坊
209的法,我试过了,比较实用。再次说声谢谢了……
发表回复
您需要登录后才可以回帖 登录 | 注册

本版积分规则


Licensed Copyright © 2016-2020 http://www.3dportal.cn/ All Rights Reserved 京 ICP备13008828号

小黑屋|手机版|Archiver|三维网 ( 京ICP备2023026364号-1 )

快速回复 返回顶部 返回列表