QQ登录

只需一步,快速开始

登录 | 注册 | 找回密码

三维网

 找回密码
 注册

QQ登录

只需一步,快速开始

展开

通知     

全站
11天前
查看: 1630|回复: 2
收起左侧

[求助] 断开的剖视图应用

[复制链接]
发表于 2011-2-11 14:34:08 | 显示全部楼层 |阅读模式 来自: 中国浙江杭州

马上注册,结识高手,享用更多资源,轻松玩转三维网社区。

您需要 登录 才可以下载或查看,没有帐号?注册

x
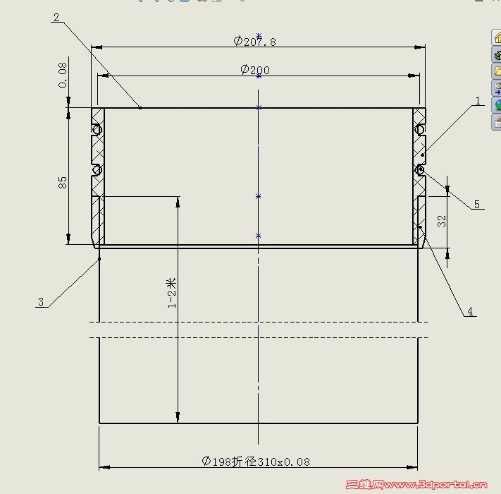
出工程图时有时只需要全剖的断面图,选择用断开的剖视图时深度参考选择基准轴剖开,自动标注零件序号。保存后下次再次打开时会出现序号丢失现象,请教如何避免
未命名.jpg
 楼主| 发表于 2011-2-12 08:32:56 | 显示全部楼层 来自: 中国浙江杭州
怎么没人解答?我自己顶一下
发表于 2016-7-13 08:54:49 | 显示全部楼层 来自: 中国江苏苏州
我也需要这个操作。
发表回复
您需要登录后才可以回帖 登录 | 注册

本版积分规则


Licensed Copyright © 2016-2020 http://www.3dportal.cn/ All Rights Reserved 京 ICP备13008828号

小黑屋|手机版|Archiver|三维网 ( 京ICP备2023026364号-1 )

快速回复 返回顶部 返回列表