QQ登录

只需一步,快速开始

登录 | 注册 | 找回密码

三维网

 找回密码
 注册

QQ登录

只需一步,快速开始

展开

通知     

全站
8天前
查看: 4170|回复: 3
收起左侧

[求助] 请问caxa数控车精加工时不沿圆弧轮廓走刀?

[复制链接]
发表于 2011-1-15 20:55:33 | 显示全部楼层 |阅读模式 来自: 中国浙江衢州

马上注册,结识高手,享用更多资源,轻松玩转三维网社区。

您需要 登录 才可以下载或查看,没有帐号?注册

x
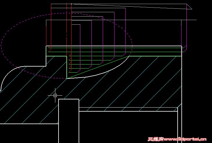
我在用caxa数控车精加工圆弧时,生成的刀路轨迹不是沿圆弧的,怎么改?谢谢了7 s  S& k  M( z: z
在附件里
截图00.jpg
发表于 2011-1-16 17:25:32 | 显示全部楼层 来自: 中国河南郑州
按图所示,详细干涉检查选是,干涉后角选80度.不过,你的实际加工刀具在加工过程中不要干涉阿. 2 ~7 C7 |8 i4 d% f. b9 E3 A
捕捉.jpg
 楼主| 发表于 2011-1-16 21:08:43 | 显示全部楼层 来自: 中国浙江衢州
谢谢楼上的!不过我还想问下,80度是怎么来的?
发表于 2011-1-26 16:32:28 | 显示全部楼层 来自: 中国河南郑州
这个干涉后角在机械加工中对应刀具副偏角,干涉前角对应机械加工中的主偏角.刀具主偏角副偏角都小,刀具楔角就大,你吃刀能扎得下去吗?就是程序生成了,在实际加工过程中产生干涉,所以,要进行干涉检查.
发表回复
您需要登录后才可以回帖 登录 | 注册

本版积分规则


Licensed Copyright © 2016-2020 http://www.3dportal.cn/ All Rights Reserved 京 ICP备13008828号

小黑屋|手机版|Archiver|三维网 ( 京ICP备2023026364号-1 )

快速回复 返回顶部 返回列表